Ремонт ПВХ-окон от А до Я

- -
- 100%
- +

Часть 1
1 Набор инструментов
1 Рулетка
2 Карандаш
3 Угольник
4 Шуруповерт (дрель)
5 Электролобзик
6 Перфоратор
7 УШМ («болгарка»)
8 Сверла от 2 до 12 мм
9 Ключи шестигранники от 2 до 8 мм
10 Ключи торекс (Звездочка) 15, 20, 25, 30
11 Уровень пузырьковый 600мм и 1200мм
12 Ножницы по металлу
13 Нож макетный (канцелярский под 18 мм лезвия)
14 Лопатка для стеклопакетов
15 Киянка (пластик-резина)
16 Шпателя (40-100 мм)
17 Стамеска
18 Молоток
19 Полотно для ножовки по металлу (300 мм) или ножовка по дереву
20 Степлер мебельный
21 Пистолет для герметика
22 Струбцина (до 200 мм маленькая)
23 Пистолет для пены монтажной
24 Лом-гвоздодер
25 Плоскогубцы
26 Шнурка или Лазерный нивелир (по возможности)
27 Кисть малярная (40-60мм)
2 Общение с заказчиком
Перед звонком Клиенту рекомендуется предварительно ознакомиться с претензией (заявкой на сервис), по возможности узнать у менеджера максимум информации о заявке, зачастую информация в базе (1с) очень скупа или вообще почти нет. Таким образом можно будет заранее подготовить материалы или запчасти заранее (выписать, найти, напилить и т.д.)
Звонок клиенту.
Обязательно представьтесь, желательно полностью – имя организации, должность, ваши Имя и Фамилия, озвучите по какой причине звоните (сервис, претензия).
Разговор ведите вежливо, даже если Клиент негативно настроен, договаривайтесь о встрече (иногда заказчика нет на месте, уточняйте к кому обратиться на адресе – прораб, жена, дети)
Время, старайтесь согласовывать, УДОБНОЕ ДЛЯ ЗАКАЗЧИКА, таким образом возможный негатив будет значительно меньше (если это претензия), до звонка желательно уточнить время, которое может понадобиться на дорогу.
Обязательно уточняйте адрес (бывает, что указывают соседнее строение, или дома в навигаторе нет), если нет возможности найти самостоятельно, договаривайтесь о встрече в какой-либо точке местности, которую легко найти.
Сбор информации
На адресе попросите Заказчика показать все дефекты, которые его не устраивают. Выслушайте Заказчика до конца, не перебивайте, задавайте уточняющие вопросы после того, как Вам, все показали и рассказали. Если количество дефектов/замечаний большое, не поленитесь и запишите со слов Заказчика все, что он перечислил.
Выявление дополнительных замечаний
Случается так, что какие-то дефекты/недоделки Заказчик находит во время повторного осмотра с Вами, поэтому, если что-то заметили сами, не акцентируйте на этом внимания, постарайтесь потом по возможности исправить дефект, не обсуждая с Заказчиком (пример: подклеить уголок, замазать стык жидким пластиком). Это относится к гарантийному сервису.
Если дефект значительный, но Заказчик воспринимает это как должное (например, входная дверь штапиками наружу), то, необходимо данный дефект обсудить с Заказчиком и предложить варианты решений (перемонтаж, переделка части изделия), так как в будущем если дефект все же будет выявлен, это будет уже дополнительный негатив со стороны Заказчика, или обвинят в некомпетентности (замерщика, менеджера, сервисника)
Исключения:
Уклон отлива меньше 100°, отлив стоит на окне, которое под навесом/верандой, и уклон отлива не имеет значения, так как вода на него никогда не попадет.
Над дверью глухая фрамуга штапиками наружу, по габаритам в которую не влезет человек, переделывать такую фрамугу тоже не имеет смысла, так как защита от проникновения внутрь помещения сохраняется.
Перечислять все недостатки смысла нет, так как ситуаций такое же великое множество, как и вариантов изделий и отделки.
Техническое обоснование (эстетическое для отделки)
Следует учитывать, как дефект может повлиять на эксплуатацию изделия, и не всегда есть необходимость говорить об этом Заказчику, либо объяснить, что на работу изделия (или элемент отделки) найденный недочет никак не влияет.
Перед тем как согласиться с Заказчиком что его претензия обоснована, проверьте для начала замерочный лист.
Часто возникает недопонимание между словами Клиента и Замерщиком. То, что представил себе Клиент, замерщик не может перенести на бумагу.
Реальный пример: Клиент заказал лоджию 2500*1400, которая полностью закрыта сэндвич панелью1, кроме створок, сами створки 500*800 с стеклопакетами. Когда клиенту привезли конструкцию, он сказал, что заказывал плавный переход сэндвича в стеклопакет.
Таким образом, если в замерочном листе данные совпадают с тем, что установлено, то смысл претензии теряется, так как заказчик расписывается под конфигурацией того, что он заказал.
В ситуации, когда изделие установлено не так как хотел Заказчик, то следует выяснить у монтажников, что им помешало установить изделие так, как было спланировано заранее. Чаще всего изменение в монтаже происходит из-за скрытых недостатков проема, которые замерщик не может увидеть или выяснить на месте, без демонтажа самой конструкции. В таких случаях, чаще всего, сами монтажники говорят об этом заказчику, когда начинают ставить изделие. Но, иногда заказчик отсутствует, и монтажники выполняют работу на своё усмотрение. Сервисный инженер (Сервисник далее) в данном случае должен грамотно (с точки зрения монтажа и ГОСТа) объяснить заказчику почему монтажники так сделали (поставили выше/ниже/глубже изделие) и как в общем это отразилось на установке (отделке).
Пример: изделие немного задвинуто внутрь, так как подвесные анкерные пластины2 не достают до стен, зона утепления в стене очень широкая, и нет возможности закрепить изделие по ГОСТу на 2 точки в пластине. Не вскрывая откоса, это трудно объяснить Клиенту.
Отделка окна тоже может выглядеть не эстетично, чаще всего, это видно, когда угол рассвета 00, и у монтажников нет выбора при установке откосов. За исключением тех случаев, когда можно поставить стартовый профиль (или П-профиль), опять же, это нужно согласовывать с заказчиком, или объяснять ему, почему монтажники так сделали.
Определение: Угол рассвета
Величина разворота откосов пропорциональна толщине стены: чем шире стена – тем больше разворот, обычно расчет 1:10, то есть при ширине стены 40 см, отступление от перпендикуляра к нижней линии рамы должно составлять 4 см; Оконные откосы в одном помещении должны иметь одинаковый угол.

Большинство изъянов по внешнему виду отделки «появляется» из-за кривизны стен.
Пример: уголки не плотно прилегают к стене (стена волной)
или визуально окно (отделка) «завалено» по тому, что горизонт в проеме (вообще в стене) отсутствует.
Вывод: не торопитесь спорить с Заказчиком, то, что для Вас очевидно, не всегда понятно Клиенту, для начала внимательно выслушайте (делайте записи, если претензий много), не забывайте вести фото- или видео фиксацию по претензиям, изучите замерочный лист, список работ для монтажников (информация должна быть в договоре/спецификации) и только проведя ПОЛНЫЙ осмотр и уточнив непонятные/спорные моменты можно согласовывать с Заказчиком список необходимых работ (гарантийные), или дату и время в которые Вы приедете для начала выполнения работ (если необходимы материалы и запчасти которых с собой нет).
3 Первичный осмотр
Порядок осмотра изделия на месте можно подвести к одному общему алгоритму:
1 Материал стен
2 Осмотр внутренней отделки
3 Осмотр изделия
4 Проверка работы изделия
5 Внешняя отделка
Первый пункт списка разберем подробно, остальные более детально в следующей части.
От материала стен зависит схема монтажа и варианты отделки, зачастую проблемы с изделием (отделкой) напрямую связанны с тем, из чего сделана стена.
1) Панельный дом – самый любимый для монтажников, монтаж по ГОСТу, минимум проблем по отделке, но есть исключения.
В пятиэтажных панельных домах попадаются плиты с большой четвертью снизу (рисунок 1), под старым Окном лежит брус (может даже не один). Зачастую претензия к монтажу именно из-за того, что монтажный шов под подоконником получается 100-150мм. Так же монтажники могут неправильно установить опоры, которые при такой высоте могут «упасть», а подвесные пластины до стены внизу не достают, и окно буквально проваливается в проеме. Результатом провала является провисание рамы, перекос створки.

Рисунок 1
Вид сбоку

Рисунок 2
Есть панельные дома с двойными четвертями (рисунок 2). Оконная рама залита в плиту. При монтаже таких окон внутреннюю четверть чаще всего не сбивают (очень трудоёмко и дорого), просто уменьшают размер нового окна. Так как окно меньше, оно не заходит за наружные четверти, а внутренняя отделка откосами делается на стартовый или П-профиль. Часто угол рассвета при данном монтаже не больше 10 мм.
2) Кирпичный дом – красный, белый кирпич, шлакоблочный, очень нелюбимый для монтажников (много мусора при демонтаже). Монтаж стандартный по ГОСТу, очень много нюансов при монтаже, начиная от вариантов крепления, заканчивая внутренней отделкой. «Золотое дно» для платной сервисной службы. Шанс продувания через стены очень велик. Кирпичные дома очень «подвижны», даже те, которые стоят по 40 лет, постоянно двигаются, это очень часто отражается на стыках внутренней отделки. Жидкий пластик (Cosmofen Plus – S белый), которым герметизируют (склеивают) стыки откосов и рамы, даёт трещины уже через 2-3 месяца.
Отдельного рассмотрения заслуживают кирпичные дома досоветской постройки.

Вид сверху
Зачастую наружная отделка проблематична, так как окно уменьшают, чтобы можно было поставить откосы. Если замерщик ошибся и сделал окно по габаритам старого (за вычетом монтажного шва), то монтажники, очень долго будут выковыривать кирпичи из старого проёма (кирпичи такие, что перфоратор не всегда помогает), или угол рассвета будет отрицательным.
3) Деревянные дома – сложность монтажа зависит от возраста дома. Основной проблемой для сервисника является усадка дома. Если нет обсадной коробки (лафета), то вероятность перекоса окна очень велика. Обычно при отсутствии обсадной коробки, гарантия на монтаж снимается.

Обсадная коробка:
1 – зазор под усадку с утеплителем
2 – обсадная коробка
3 – окно
4 – подоконник
5 – паз под закладной брус
6 – закладной брус
7 – утеплитель
8 – обналичка (нащельник)
9 – отлив (сандрик)
При монтаже в старую коробку деревянного окна (то есть без обсады), роль обсадной коробки выполняет старая коробка (рама) окна. Чаще всего проём перекошен, и при установке по уровню, ПВХ окно в проёме смотрится криво, либо откосы трапецией. Часто монтажники уточняют у заказчика как установить окно – по проёму или по уровню? Заказчик, видя перекос окна в проёме, просит поставить окно по проёму, в результате уровня нет, окно «завалено» в одной из плоскостей, а то и в двух. Створка в окне после такого монтажа произвольно закрывается или открывается. Результат монтажа по проёму – потеря гарантии, и это не всегда удаётся объяснить заказчику, потому что, монтажники не удосужились объяснить клиенту, чем грозит такой монтаж.
Ещё один недостаток старых деревянных домов – большая зависимость от температуры и влажности. Дом «дышит», линейные размеры проема изменяются, ПВХ окно – перекашивает, чаще всего это отражается на створках (перестают открываться).

4) Новостройки – тип стен – любой. В новых домах очень часто меняют ПВХ изделия на ПВХ изделия, монтаж не очень сложный, так как монтажники знают как установлено окно, за исключением тех случаев, когда отделка сделана позже, зачастую демонтаж откосов занимает больше времени, чем сам монтаж. Окно устанавливается в старое место. Замена бюджетного окна от застройщика часто не имеет смысла, так как проще довести «до ума» старое окно, тут большое раздолье для платного сервиса (врезка створок, приточные клапаны, новое уплотнение, дополнительные прижимы). Заказчики часто считают, что замена окна избавит от продувания, и это очень большое заблуждение. Продувание идет не из окна, а из зоны утепления (минплита, пенопласт между стен). Это относится и к Сенарджи. Полимерцементный раствор, на который укладывается утеплитель, возле оконного проёма часто отходит при демонтаже окна.
Это касается не только частных домов, но и многоэтажек.

При монтаже окон от застройщика, зона утепления в оконном проёме между слоями стены не закрывается ничем, и воздух с улицы свободно проходит вдоль утеплителя внутрь помещения (в частных домах часто делают вентилируемый фасад). Если проем был пустой и окно изначально устанавливалось от фирмы, то в замерочнике/договоре должно быть прописано закрытие зоны утепления пенополистиролом или пенопластом, если нет, продувание 99%
В деревянных новостройках продувание чаще всего с обсадной коробки (в тех местах, где забит утеплитель – джут), изредка с самой конструкции, так как дом дает усадку, и изделие может смещаться в проёме вместе с «обсадой».
Предварительная информация по материалу стен полученная от замерщика/монтажника может помочь в некоторых ситуациях вычислить проблему (продува или перекоса) до того, как Вы начнете осмотр изнутри помещения.
Часть 2
1 Элементы окна и отделки

Окно и отделка за последние 10 лет не сильно изменились, меняются материалы отделки (гипсокартон, сэндвич), меняется состав ПВХ профиля (желтее, белее), появилось много цветов ламинирования (даже покраска есть), но сам принцип монтажа окна и отделки не изменился и соответствует ГОСТу 23166-99 и 30971
С развитием ПВХ систем, появляются новые виды фурнитуры, под различные пазы и варианты открывания.
Основные элементы обвязки фурнитуры в большинстве случаев очень схожи между собой. Есть несколько отличий, которые каждый производитель фурнитуры патентует как свои уникальные узлы. Перечислять все «фишки» для каждой конкретной фурнитуры нет смысла, в большинстве своем эти различия немного меняют принцип работы в поворотно откидном режиме (пример: поворотно-откидной наконечник, и поворотно-откидная угловая передача или сначала откидной режим, потом открывание). Небольшая разница в элементах ножниц. Все остальные элементы фурнитуры очень похожи.

Исключением является фурнитура со скрытыми петлями, принцип работы у неё схожий с обычной, но постановка в окне отличается и может вызвать затруднение у незнакомого с этой фурнитурой сервисного инженера.
2 Основные параметры/габариты для проверки
Ниже приведён общий перечень для проверки в цеху и после монтажа, вся информация из ГОСТа 30971, 23166—99 и папки Переработчика профильных систем. Все пункты обязательны для проверки, отклонение по одному из них – обоснованная претензия Заказчика, или дефект, на основании которого создана претензия.
1) Отклонение от вертикали и горизонтали смонтированных конструкций не должны превышать 1.5мм на 1 метр длины, но не более 3мм на всю высоту изделия (ГОСТ 23166—99)
2) Несоответствие размеров изделий существующим проёмам (замерам), установка не в четверти. Нарушена
геометрия изделия, щель стыка рам, крепления импоста <0,5мм. Отклонения размеров коробок рам <±1мм, створок < -1мм. Разность диагоналей <2mm при L <1400mm и <3mm при L>1400mm. Притвор – 8 (±1,5) мм. Перепад лицевых поверхностей <0,7mm, соединение с импостом <1,0mm Повреждение изделия. Дефекты поверхности ПВХ, различимые с расстояния 0,6м.
3) Замятие уплотнителя, стык не вверху.
Неправильная сборка фурнитуры.
Установлены не по месту, не закреплены ответные планки.
Штапик не в размер, щель в стыке.
Перепад высот смежных ручек >2mm.
Дефекты сварного шва, размер канавки – ширина <5mm, глубина -0,5-1mm.
4) Размеры монтажных зазоров согласно ГОСТ-30971.
5) Провисание открывающихся элементов в собранном изделии <1,5мм на 1 метр ширины
6) Устройство монтажного шва – согласно технологической документации и требований ГОСТ-30971.
7) Наличие и количество крепежа.
От угла коробки <150-180мм, от импоста <120-180мм. Между собой не более значений указанных производителем профильной системы.
8) Работа фурнитуры, плавность, легкость, отсутствие самопроизвольного перемещения из положения «открыто» или «закрыто».
9) Установка подоконника. Отклонение от горизонтали в обеих плоскостях <1.5мм на 1 метр длины, но не более 3мм на всю длину. Наличие подушки из пены и устройство опорного основания (нагрузка 100 кг). Наличие дополнительного груза или распора от выпирания. Заглушки устанавливаются в размер. Плотность примыкания подоконника к нижней плоскости оконной рамы. Наличие герметика в соединении подоконник рама. Наличие дополнительных кронштейнов при выносе подоконника ˃1/3 ширины от плоскости стены. Прогиб подоконника <2мм на 1метр длины.
10) Установка накладных откосов и уголков, геометрия, симметричность, герметизация мест примыкания к раме и подоконнику. Отсутствие волн на уголках, плотность прилегания к стене и откосам.
11) Установка отлива, выгибание, наличие пенного шва под отливом, заполнение силиконом шва между отливом и оконной рамой. При установке отлива, в узлах примыкания к наружной четверти проема и коробке оконного блока необходимо исключить попадание влаги в монтажный шов. Угол наклона отлива не менее 100° от вертикальной плоскости.
12) Дополнительные параметры (индивидуально для некоторых конструкций)
Все, вышеперечисленное, подетально разберем позже, немного в другом порядке, так как некоторые ошибки/дефекты могут входить одновременно в несколько пунктов, примечания на список будут подписаны по номерам из списка (1…12).
3 Ошибки/дефекты при сборке на производстве
99% ошибок при сборке ПВХ изделия на производстве – человеческий фактор, за исключением системных ошибок связанных с оборудованием.
На полностью автоматических линиях вероятность брака стремится к 0.
К сожалению, не очень многие производители могут похвастаться автоматизированной сборкой, и поэтому, рассмотрим ошибки, которые в большинстве случаев встречаются на изделиях ПВХ по вине работников производства.
1 Самая популярная ошибка – постановка ответной планки не по месту


Установка ответной планки вручную сборщиком осуществляется при помощи шаблона, или по карандашной метке. Установка производится на не остекленном изделии, створка после остекления даёт усадку на петлях, что приводит к увеличению зазора между цапфой и ответной планкой, (Пункт 3 в списке проверки) или наоборот уходит в отрицательную величину.
Вторая по распространённости ошибка – неправильная постановка угловой передачи, ошибка на 2-3 зуба,

такую ошибку легко найти, достаточно посмотреть постановку цапф на приводах, когда створка находится в положении открыто (Пункт 3 списка проверки).
Не самая популярная, но регулярно встречающаяся ошибка – не правильная постановка внешнего прижима (у сервисников – наружный прижим). Не путать со скрытым (внутренним) на фото ниже

.
Когда ответная часть прижима стоит на раме в крайнем верхнем или нижнем положении, пропадает возможность регулировки в одном из направлений, когда на раме 2 прижима и оба в разные стороны. Пропадает сама возможность регулировки, это исправимо, но об этом позже.

Прижимы ставятся по шаблону, но на не остеклённом изделии, и положение створки меняется под нагрузкой стеклопакета.
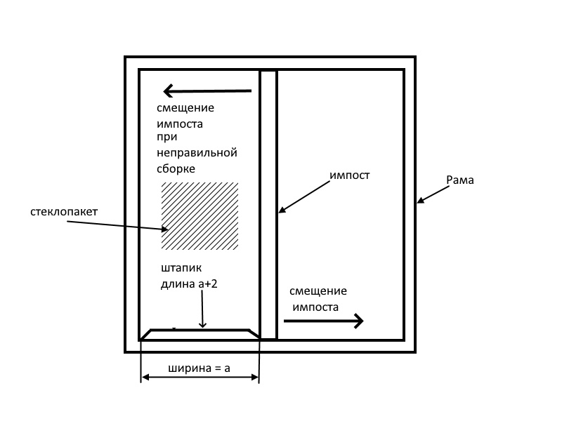
Частый недостаток (не дефект) при сборке изделия, смещение импоста.

При смещении импоста ± 1 мм обычно проблем не возникает, но в случае, когда импост дополнительно смещается из-за того, что штапик для стеклопакета напилен плюсовым размером (на рисунке а+2), то смещение импоста может увеличится до +3 мм, соответственно створка будет задевать. При автоматизированной сборке такие ошибки почти не встречаются. (Пункт списка проверки 2,3)
Неустранимые ошибки производства.
Самая распространенная ошибка, линейные габариты изделий не соответствуют чертежу. Отклонение ±1 мм не критично, но иногда происходит так, что габариты рамы -1 мм, а габариты створки +1 мм, тогда может возникнуть проблема в работе изделия (Пункт списка проверки 2). Данная ошибка чаще всего возникает из-за неправильной работы оборудования на производстве (сбилась настройка пилы, неверная температура сварки, холодный профиль и т. д. причин очень много). Исключением являются не прямоугольные конструкции. Сварка углов происходит вручную, вероятность ошибки очень велика, зачастую притвор в конструкциях далек от ± 8 мм (пункт списка проверки 2,5,8) Створки без прямых углов, так же могут провисать или задевать.
Ещё одна неустранимая ошибка, слишком глубокая зачистка сварных углов. Глубокая зачистка приводит к тому, что в торце изделия появляется отверстие. Глубокая зачистка на лицевой стороне, приводит к тому, что угол выглядит очень не эстетично. При осмотре изделия Заказчиком, это самая распространенная претензия. Виной тому, опять же работа зачистного станка.
Очень редко встречаются поджоги в сварном шве, это результат неправильной работы сварочного станка.
4 Линейные габариты, сварные швы, стыки, прогибы профиля. Варианты исправления дефектов/ошибок
Разберем более подробно необходимые для проверки изделия пункты из списка проверки (смотреть выше).
Линейные габариты

Перед проверкой работы фурнитуры лучше всего сделать отметки на раме при помощи карандаша по периметру створки


Таким образом можно сразу проверить притвор (пункт проверки 2, 5). Так как створка может провиснуть, карандашная метка не совсем точное определение притвора. Для уточнения размеров притвора лучше всего проверить габариты створки внутри помещения (ширина, высота) и световой проем рамы изнутри
В среднестатистическом окне общая сумма притвора рана 16 мм, то есть притвор в горизонте слева и справа от створки в сумме дает 16, в идеале 8 мм с одной стороны – это стандарт, но зачастую габариты разнятся ±2 мм, карандашная метка вокруг створки помогает это проверить. Если размер притвора в сумме меньше 13мм, это уже брак.
Размер притвора внутри и снаружи рамы не одинаков!!! Многие Сервисники забывают, что ширина разных профильных систем по фальцу не одинакова и считают, что притвор в 5 мм – это мало.

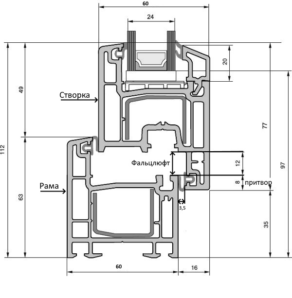
Быстрая проверка притвора – проверить фальцлюфт.
Определение: фальцлюфт – зазор между фальцем (торец, где находится фурнитурный паз) створки и фальцевой части рамы (со стороны открывания створки) на рисунке ниже показан фальцлюфт более наглядно.

Для разных профильных систем величина фальцлюфта тоже различна. Она колеблется от 4 мм до 12. Не стоит пытаться её проверить с точностью до миллиметра, опытный Сервисник проверяет линейные габариты створки и проема, затем проверяет зазор между ответной планкой и створкой. Так как величина ответной планки статична, то и зазор должен быть одинаковым, между ответной планкой и створкой в любой точке фальцлюфта. Наглядно:



