- -
- 100%
- +

Die schönsten Einfamilienhäuser für jedes Budget und jedes Grundstück
Wolfgang Bachmann Katharina Matzig

Inhalt
Vorwort
Maßgeschneidert wohnen, leben und wohlfühlen
Haus mit Seele
Baumeister DI Jürgen Haller
Haus mit Haltung
BUB architekten
Das Haus als Therapie
Steimle Architekten
Seewarte
Dietrich | Untertrifaller Architekten
Feste Burg
savioz fabrizzi architectes
Ein klassisches Steinhaus
Petra und Paul Kahlfeldt Architekten
Haus 11 x 11
Titus Bernhard Architekten
Umbau eines Stalls zum Wohnhaus
Ruinelli Associati Architetti
Das Jahreszeitenhaus
Jurek Brüggen Arch BSc ETH + KOSA Kopp Sailer Architekten
Haus mit Seeblick
studioRAUCH
Kunst im Bau
fabi architekten
Diskreter Rückzug
NIEBERG ARCHITECT atelieraxelnieberg
Wohnen, wo andere Urlaub machen
bergmeisterwolf architekten
Weiterbauen im Weiler
pedevilla architects
Haus am Hang
Jürgen Mayer H.
Erweiterung eines Wohnhauses
denzer & poensgen
Nachhaltiges Holzhaus
Marion Wicher Architektur
Den See im Blick
Daluz Gonzalez Architekten
Kraftort
Innauer Matt Architekten
Expressiv aus Tradition
coido architects (coido GmbH)
Zwei, drei, eins
Pavol Mikolajcak Architects
Kleine Welle
werk A architektur
Einzelstück
pedevilla architects
Luxus der Lage
Michele Arnaboldi Architetti
Dorfschönheit
bernardo bader architekten
Ein Haus für Mensch und Moos
Architekt Andreas Gruber
Längsgestreift
EBERLE ARCHITEKTEN
Brandzeichen
Backraum Architektur
Verwandlungskunst
Davide Macullo Architects
Phasenverschiebung
Architekten Luger & Maul ZT GmbH
Auf sechs Pfeilern
Bearth & Deplazes Architekten
Neues Bauen in der Altstadt
hehnpohl architektur
Quadratisch, praktisch, sehr gut
Cukrowicz Nachbaur Architekten ZT GmbH
Landhaus
Modersohn & Freiesleben Architekten Partnerschaft mbB
Betonfindling
Steimle Architekten
Spitzenarchitektur
Falke Architekten
Ein Treppenhaus
LP architektur ZT GmbH
Fundstück
RAINER ROTH ARCHITEKT
Haus über dem See
Wespi de Meuron Romeo Architekten
Das Glashaus
Liebel/Architekten
Fernost im Osten
Thomas Kröger Architekten
Umbauen und bleiben
Jochen Specht
Mehrgenerationenhaus
Christine Remensperger
Fels in der Brandung
koeberl doeringer architekten
Haus mit Garten, mitten in Berlin
asdfg Architekten, Loeper Schmitz Grenz PartGmbB
Effizienter Dreiklang
GRAFT Gesellschaft von Architekten mbH
Berg- und Talhaus
atelier AMC sa
Behauste Scheune
bernardo bader architekten
Wohnhaus mit Pferdestallungen
Schneider & Schneider Architekten
Bauhaus, Baujahr 2018
Kupferschmidt Architekten GmbH
Kulturbau
Titus Bernhard Architekten
Gartenhaus
bfs d flachsbarth schultz, Stefan Flachsbarth, Michael Schultz
Wohnscheune in den Bergen
architektur.terminal hackl und klammer
Wohne lieber ungewöhnlich
Katrin Hootz Architektengesellschaft mbH
Unentdeckte Moderne
Büro 4 Wagner + Partner
Ein Haus fürs Bad
Corneille Uedingslohmann Architekten
Naturschauspiel
Falkenberg
Freundlicher Fremdkörper
BIEHLER WEITH building design projects
Das Dorfhaus
Davide Macullo Architects
Burg aus Beton
Davide Macullo Architects
Ornament und Konstruktion
AFF architekten und stephan hahn architekt & zimmerer
Im schwarzen Bereich
SoHo Architektur
Aquarius
lynx architecture
Faltung
bergmeisterwolf architekten
Klassische Moderne
Axel Steudel Architekten
High Performance, Low Tech
Bearth & Deplazes Architekten
Haus mit Hof
denzer & poensgen
Bergbau
savioz fabrizzi architectes
Das Pentagon
MoDus Architects
Über den Wiesen
Markus Schietsch Architekten
Wie ein Felsen im Berg
bottega + ehrhardt architekten
Wohnhaus in Traumlage
Baumeister DI Jürgen Haller und Peter Plattner
Drei Einfamilienhäuser
Marques Architekten AG
Das Rundherumhaus
mia2/ARCHITEKTUR
Länge läuft
Beer Bembé Dellinger Architekten
Fenster zum See
studioRAUCH
Nachhaltig eingenistet
Georg Bechter Architektur+Design
Ein Sonnenhaus
Manfred Lux Architekt
Wohnen und werken
Thomas Kröger Architekten
Haus auf einer Jura-Wiese
Pascal Flammer
Reduce, reuse, recycle
André Rösch Architekt
Weinstock-Bau
L3P Architekten
Organische Architektur
Finsterwalderarchitekten
Schutzhütte im Laternsertal
Marte.Marte Architekten ZT GmbH
Archetypus
bernardo bader architekten
Feinheiten
Innauer Matt Architekten
Urhütte und Villa
CLAVIEN ASSOCIÉS
Haus über der Landschaft
HHF architekten GmbH
Das Reihenhofhaus
habermann.decker.architekten PartGmbB
Nah am Wasser gebaut
VOITH Architektur + Stadtplanung
Dorferneuerung
Architekt Daniel Ellecosta
Living in a box
Berschneider + Berschneider Architekten
Haus, Halle und Hof
Baumeister DI Jürgen Haller
Landluft
Thomas Kröger Architekten
Regional, rural, phänomenal
Cukrowicz Nachbaur Architekten ZT GmbH
Sanierung eines Bauernhauses
Katrin und Otto Brugger
Panoramastube
Dietrich | Untertrifaller Architekten
Aus einem Guss
Fischer Schmieder Architekten
Ein Heustadel bleibt
Architekten Luger & Maul ZT GmbH
Das Korkenzieherhaus
rundzwei Architekten
Adressverzeichnis
Impressum

Vorwort
Maßgeschneidert wohnen, leben und wohlfühlen
„Wohnst du noch oder lebst du schon?“ Seit 2002 wirbt ein schwedisches Möbelhaus mit dieser Frage. Der Slogan ist nicht nur äußerst einprägsam und erfolgreich, er ist zudem staunenswert klug: Beschreibt er doch, dass Wohnen und Leben nicht a priori dasselbe bezeichnen. Wer sein Zuhause von einer schlichten Behausung in einen Ort des Wohlfühlens verwandeln will, in einen Ort, der der Geselligkeit ebenso Raum gibt wie dem Rückzug und der Platz bietet zum Spielen, Arbeiten, Erholen – zum Leben eben –, muss ihn gestalten und dazu machen.
Die Sehnsucht danach liegt uns Menschen im Blut, unser Streben nach einem Wohnwert, der zugleich lebens- und liebenswert ist, geht viel weiter zurück als ins Jahr 2002. Auch wenn paläoanthropologische Erkenntnisse meinen, dass der Traum des Steinzeitmenschen nicht die Höhle, sondern die Laubhütte, ein Baum oder das lederne Zelt gewesen sein könnten, bemüht sich der Mensch von Beginn an um eine Stätte des Schutzes und des Wohlbefindens. Über Höhle, Nest oder Zelt sind wir längst hinaus: Zeitgemäße Traumhäuser ermöglichen auf vielfältige Weise ein traumhaftes Leben. Sie können kostengünstig und bescheiden sein, repräsentativ und luxuriös. Sie sind aus Holz konstruiert oder aus Beton, Stahl oder Mauerwerk, mit Glas, Aluminium, Stoff oder Kork umhüllt, stehen auf dem Land, im Dorf oder der Stadt, am Hang oder am Wasser. Sie sind klein oder groß, im Grundriss und in der Form kompakt oder raumgreifend. Das Traumhaus kann ein Altbau sein, der energetisch und räumlich zukunftsfähig saniert, umgebaut oder erweitert wurde. Oder ein Neubau, der bereits bei der Planung die sich wandelnden Bedürfnisse seiner Bewohner berücksichtigt. Nur in einem Punkt sind die in diesem Buch vorgestellten Häuser der letzten zehn Jahre vergleichbar: Alle erfüllen allerhöchste Ansprüche an die Qualität, das heißt: an die angemessene Einbettung in den Kontext, die zeitgemäße und zukunftsweisende Nachhaltigkeit und Energieeffizienz sowie die herausragende Gestaltung der Innen- ebenso wie der Außenräume.
Seit 2011 suchen das Deutsche Architekturmuseum und der Callwey Verlag beim Wettbewerb „Häuser des Jahres“ jedes Jahr aufs Neue die 50 besten neu erbauten Einfamilienhäuser im deutschsprachigen Raum, in Deutschland, Österreich, der Schweiz und in Südtirol. Dafür sichten, diskutieren und werten die renommierten Jurys jedes Jahr an die 200 Einreichungen, um die architektonisch überzeugendsten, lebenswertesten Wohnträume zu finden. Versammelt werden sie, Jahr für Jahr, in dem Buch „Häuser des Jahres“. Bis 2016 erschien es unter der Redaktion von Dr. Wolfgang Bachmann, seit 2017 zeichne ich als Autorin verantwortlich. Die hier zusammengestellten 100 Traumhäuser wurden also zweimal ausgezeichnet, um eine baulich manifestierte Antwort zu geben auf die eingangs gestellte Frage. Sie werden ausführlich in den von Wolfgang Bachmann und mir verfassten Texten beschrieben und mit professionellen Fotos bebildert. Pläne – in der Regel im Maßstab 1:400 und Lagepläne im Maßstab 1:2000 – wurden von den Architekten ebenso zur Verfügung gestellt wie Angaben zu Wohn- und Nutzfläche, Grundstücksgröße, dem Jahr der Fertigstellung, Anzahl der Nutzer, der Bauweise, zum Teil auch von Baukosten und Energiekennwerten. Von der Stange kaufen, wie bei IKEA, lassen sie sich nämlich nicht: „Die Planung eines Einfamilienhauses ist wie das Anfertigen eines Maßanzugs: exaktes Maßnehmen, besprechen, abwägen, ausprobieren, ändern. Und wieder von vorne. Am Ende soll es perfekt passen“, so beschreibt die Wiener Architektin Johanna Schuberth vom Büro Schuberth und Schuberth Architektur und Innenarchitektur, deren Haus als eines der „Häuser des Jahres 2020“ ausgewählt wurde, die Zusammenarbeit zwischen Architekt und Bauherr.
Wohnst du noch oder lebst du schon? Wir sind sicher: Die Bewohner der 100 Traumhäuser kennen die Antwort. Sie lautet: Wir leben, indem wir maßgeschneidert wohnen.
Katharina Matzig
100
TRAUMHÄUSER

Haus mit Seele
Markant und bescheiden, elegant und wohnlich.
Lustenau liegt im Westen des Bundeslandes Vorarlberg, die Gemeinde grenzt an die Schweiz. Am Ortsrand hatte die Bauherrin ein Grundstück geerbt, nur wenige Minuten vom Zentrum entfernt, direkt am Rheindamm. Von der Homepage und aus Publikationen kannte die junge Familie Projekte von dem Mellauer Büro von Jürgen Haller. „Häuser mit Seele“, wie sie der Architekt selbst beschreibt. So eines wünschte sie sich auch. Dass die Ansprüche an Qualität und Ästhetik hoch, das Budget allerdings eher niedrig war, stellte zwar eine besondere Herausforderung an Jürgen Haller dar – doch er traute sich zu, den garantierten Kostenrahmen auch einzuhalten, und behielt recht.
Das zweigeschossige Gebäude in Holzriegelbauweise ist in die Aulandschaft eingebettet, sein kompaktes Volumen trotzt den umliegenden Wohnbauten. Eine Weißtannenfassade aus vertikalen Latten in verschiedenen Breiten, unterschiedlich dicht aneinandergefügt, umhüllt das Wohnhaus. Wo nötig, sorgt die geschlossene Fassade für Privatheit, wo gewünscht, wird das Licht gefiltert: Der Grad der Öffnung reagiert auf die Bewegungsabläufe der Familie, auf Raumsequenzen und Blickbezüge in die umgebende Natur.
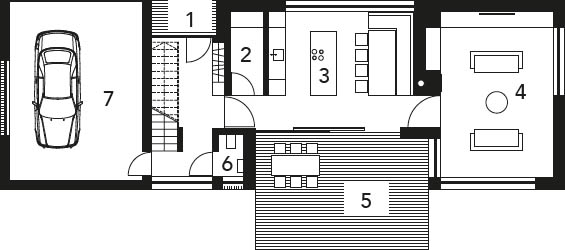
Das Gebäude wird über die nordseitige Zufahrt erschlossen, Garage und Abstellraum sind in das Volumen des Baukörpers integriert. Der Eingangsbereich ist eingeschnitten und kann auf ein Vordach verzichten, er führt zur Garderobe, zum Koch- und Essbereich sowie dem Bad. Der Wohnraum ist abgetrennt. Im Obergeschoss wurden die Schlafräume mit Bädern sowie ein Büro und ein Allzweckraum mit Technikbereich untergebracht.
Diese Ebene wurde relativ einfach und günstig materialisiert, Weißtannentäfer sorgt für Wärme und Geborgenheit. Im Erdgeschoss sind die Innenwände und Möbel in Massivholz ausgeführt, der dunkelgraue, geschliffene Zementestrich sowie das graue Küchen- und das Kaminsitzmöbel setzen sich elegant davon ab. Die Ausschnitte für Terrassen und Loggien wurden tief und geräumig ausgeführt, sie bilden attraktive Räume zwischen innen und außen, öffentlich und privat.

Oben: Das Wechselspiel von offenen und geschlossenen Fassadenflächen bestimmt das Aussehen des Hauses. Die Nachbarn waren froh, dass das relativ große Grundstück mit einem bescheidenen Einfamilienhaus bebaut wurde.
Unten: Sämtliche Baumaterialien wurden unbehandelt eingebaut. Ihre sinnliche Qualität entspricht messbaren Kriterien: Die Raumluft ist schadstofffrei, die Ökobilanz ausgezeichnet.
LAGEPLAN

OBERGESCHOSS

ERDGESCHOSS

MASSSTAB M 1:400
1EINGANG
2LAGER
3KOCHEN/ESSEN
4WOHNEN
5TERRASSE
6WC
7GARAGE
8HAUSWIRTSCHAFT
9TECHNIK
10ARBEITEN
11SCHLAFEN
12BAD
QUERSCHNITT

LÄNGSSCHNITT

Standort: Lustenau (A)
Planungsbüro: Baumeister DI Jürgen Haller
Anzahl der Bewohner:
2
Wohnfläche (m2):
203
Grundstücksgröße (m2):
1.069
Bauweise: Holzbauweise
Energiestandard: Passivhaus
Baukosten: 375.000 Euro
Fertigstellung: 2018
Haus mit Haltung
Eine Villa in der Stadt: flexibel und funktional, wertig und wohnlich.
Mit seinen Villen und hübschen Klinkerhäusern inmitten englischer Gärten vermittelt Groß Flottbek, das seinen Namen der Flottbek verdankt, die früher als Bach in Richtung Elbe floss und heute unterirdisch verläuft, im Westen Hamburgs den Eindruck eines großzügigen Landschaftsparks. Die elegant-minimalistische Villa der Hamburger Architektin Alexandra Bub passt somit bestens an diesen Ort. Die Zusammenarbeit mit zwei Architekturbüros vorher war bereits gescheitert. Das im Sommer 2017 fertiggestellte Haus, in dessen Entwurfsprozess die Bauherren von der Architektin intensiv einbezogen wurden, stellt nun alle zufrieden und entspricht zudem der Groß Flottbeker Tradition. Zurückhaltend und doch selbstbewusst reiht sich das Haus ein in die lose Folge freistehender Einfamilienhäuser. Zwei im rechten Winkel aneinanderstoßende Kuben bestimmen die kantige, eindeutig heutige Gestalt: die vorspringende Garage sowie das annähernd quadratische, zweigeschossige Wohngebäude. Zur Straße geben sich die Fassaden geschlossen. Ein warmtoniger, wassergestrichener Klinker verblendet die Außenwände, der Fugenmörtel wurde auf die hellen Steine abgestimmt und flächig aufgebracht, zusammen mit dem hellen Eichenholz der Fenster und Türen vermittelt sich eine einladende Atmosphäre. Innen öffnet sich ein Raumkontinuum: Über das Entree gelangt man in den nach Süden raumhoch verglasten Wohnbereich, an den sich im Westen Essplatz und Küche sowie im Osten Musikzimmer und Büro anschließen. In der Mitte bleibt Platz für eine zweiläufige Treppe sowie Garderobe und Bad. Das Obergeschoss springt auf ganzer Breite auf der Gartenseite zurück und macht Platz für eine großzügige Dachterrasse. Im Westen wurden zwei Kinderzimmer, im Osten der Elterntrakt angeordnet. Ein Lichthof belichtet den Gäste- und Wellnessbereich im Untergeschoss. Ebenso komfortabel wie funktional und schön lässt sich hier leben. Und das auf lange Sicht: Bereits vorgedacht ist eine mögliche Teilung in drei Einheiten, sodass sich das Gebäude an die sich ändernden Bedürfnisse der Familie anpasst.

Oben: Die Gartenfassade springt zurück und macht einem geschützten Außenraum Platz.
Unten: Die Einbaumöbel aus Eichenholz wurden von der Architektin entworfen. Sie entsprechen dem eleganten Erscheinungsbild des reduzierten Hauses.
LAGEPLAN

OBERGESCHOSS

KELLERGESCHOSS

ERDGESCHOSS

MASSSTAB M 1:400
1EINGANG
2GARDEROBE
3HAUSWIRTSCHAFT
4KOCHEN/ESSEN
5WOHNEN
6ARBEITEN
7WC
8KINDER
9GALERIE
10ELTERN





