История Древней Греции

- -
- 100%
- +

Изображение князя или царя-жреца на фреске в Кноссе. Ок. 1400 г.
Глава 1
Заселение островов Эгейского моря и минойская цивилизация
1. Зарождение минойской цивилизации
Самое раннее неолитическое поселение на Эгейских островах, обнаруженное в Кноссе на Крите, радиоуглеродным методом датируется приблизительно 6100 г. Переселенцы принесли с собой давнюю традицию гончарного дела и после недолгого периода лагерной жизни стали строить дома из обожженного кирпича. Эти дома имели фундаменты из камня и кирпича, стены из обожженного кирпича и плоские крыши из хвороста, обмазанного глиной; пищу готовили на костровых ямах и в сводчатых печах, зерно мололи каменными жерновами или в ступках. Первые жители Кносса использовали обсидиан, вероятно вывозившийся с Милоса; эта стекловидная вулканическая порода, расщепляющаяся, как и кремень, на слои с острыми кромками, была важным материалом для орудий. Делали они также антропоморфные фигурки из глины и камня. Где находились истоки этой ранней цивилизации, неясно, но, видимо, она не была родственна цивилизациям материковой Греции и, следовательно, происходила не из Малой Азии. После довольно долгого времени использование обожженного кирпича прекратилось, возможно, потому, что климат стал менее влажным, и стал применяться необожженный кирпич. Начали строить более крупные дома, обычно с двумя комнатами и внешним мощеным двором; в последних слоях 1-го ранненеолитического периода, который закончился около 5100 г., находят большое количество фигурок, а также наконечники булав. В следующий период, 2-й ранненеолитический, поселение преобразовалось в город с регулярной планировкой, что видно из ориентации стен, которые оставались на одном месте в течение среднеи поздненеолитического периодов. К концу этого периода цивилизация достигла высокого уровня развития, о чем свидетельствуют крупные здания со множеством комнат, мощеными дворами и большими очагами, не имеющие аналогов на материке или в других местах Крита, где найдено лишь несколько поздних и мелких поселений. Киклады также были незаселены до конца этого периода, и даже тогда лишь на некоторых из них появились небольшие группы людей. Уникальность неолитического Кносса помогает понять своеобразную природу поздней минойской цивилизации, которая явилась результатом смешения иммигрантов из Малой Азии, до начала бронзового века нигде не создавших ничего подобного, и умелого и опытного неолитического населения Кносса.
Ранний бронзовый век (3000–2000) начался с волн иммиграции, в ходе которых были заселены Киклады, а также восточный и центральный Крит. Судя по образцам посуды пришельцев, они были родом из Малой Азии, а на Крите перемешались с более ранними обитателями острова. Судя по найденным в раскопах скелетам, это были коренастые люди с узкими лицами и удлиненными черепами; средний рост мужчин примерно 157 см, женщин – 148 см. Новоприбывшие предпочитали селиться у моря, преимущественно в восточном Крите, где климат теплее, и довольно быстро забыли принесенную с собой культуру внутридомовых очагов. Их большие дома, как и в неолитический период, состояли из множества комнат, а мертвых они хоронили в двухкомнатных гробницах: внутреннее помещение открывалось во внешнее. Дома и гробницы практически неизменного типа характерны для всей этой цивилизации, которая существовала с 3000-го по 1400 г. без каких-либо заметных перерывов, за исключением, может быть, района Феста. Эта цивилизация называется минойской по имени знаменитого Миноса, царя Крита, о котором рассказывают греческие предания, и поэтому жителей Крита раннего бронзового века можно назвать первыми минойцами.
Позже на Фестской равнине появились новые пришельцы. Они хоронили мертвых в круглых постройках, достигавших в диаметре 12 м и, вероятно, имевших тростниковые крыши. В каждой такой постройке найдено по нескольку сотен скелетов, наверное, они служили семейными или родовыми склепами. Так как они напоминают появившиеся гораздо позже ливийские мапалии, вполне возможно, что их строители были выходцами из Африки. В любом случае их культура не повлияла на минойскую цивилизацию.
Во второй период раннебронзового века получили широкое распространение сделанные из меди кинжалы треугольной формы, пилы, туалетные принадлежности и ритуальные двойные топоры, характерные для минойской религии. В это время впервые появляются следы разведения оливок, ввозились длиннорогие быки. В украшениях и печатях, сделанных из золота, слоновой кости, фаянса и стеатита, и изящных каменных вазах просматривается влияние Египта, усилившееся в 3-й период раннебронзового века.
Тем временем на Кикладах поселенцы раннебронзового века создали отдельную, но родственную минойской культуру. Их поселения состояли из жилищ, более примитивных, чем минойские дома; мертвых хоронили в связанном виде в земле, а на Сиросе – в маленьких склепах. Из камня и мрамора с большим искусством делали вазы и фигурки (в основном женские). Обсидиан с Милоса вывозился во все уголки Эгейского бассейна. Кикладцы практиковали мореплавание; их корабли послужили прообразом для маленьких свинцовых моделей и изображений на достаточно своеобразной посуде. Вероятно, ничто не нарушало мирной жизни на островах в течение всего периода минойской цивилизации, если не считать критской экспансии. Благодаря медным рудникам, которые начали разрабатывать уже в 2300 г., и своей позиции посредника между Эгейским бассейном и Востоком довольно рано большое значение приобрел Кипр. В кипрских поселениях раннебронзового века в значительном количестве встречаются цилиндрические печати, которыми вавилонские купцы помечали свои товары.
В период между 2000-м до 1600 гг. минойская цивилизация подошла к вершинам развития. Этот подъем начался в 2000–1750 гг., когда центр власти переместился с восточного Крита в центр острова, особенно на его северный берег. Около 1800 г. была основана колония на Кифере, следовательно, торговля развивалась в западном и северном направлениях. В тот же самый период впервые появились следующие новшества, позже ставшие характерными для минойской цивилизации: дворцы, дорожная сеть со сторожевыми постами между Кноссом и Фестской равниной, святилища на горных вершинах и в пещерах, плавка бронзы (сплав меди с оловом), мечи-рапиры с центральным ребром, набедренные повязки и тугие пояса в качестве мужской одежды и пиктографическое письмо. Кносс и Фест достигли наивысшего уровня культуры в 1900–1700 гг. Эта культура, характерная лишь для этих городов, указывает на их совместное господство над островом. Ремесленники Кносса и Феста брали пример с Египта, в котором тогда царствовала XII династия; но в их натуралистической трактовке египетских мотивов на фресках и посуде и в эволюции пиктографического письма проявляется независимость и оригинальность. Около 1700-го и 1600 гг. произошли два мощных землетрясения. После каждого из них на северном побережье острова, в сфере влияния Кносса, появлялось много новых поселений.
В период между двумя землетрясениями дворцы в Кноссе, Фесте и Маллии подверглись расширению и перестройке. Совершенствовалось оружие. Мечи-рапиры удлинились до 90 см и получили хвостовик, а концы бронзовой оплетки, чтобы она не разматывалась, стали заклепывать и окольцовывать. От пиктографического письма отказались в пользу линейного, которым широко пользовались на острове. Это письмо, известное как «линейное письмо А», вероятно, было слоговым; его знаки писались чернилами на глиняных черепках и, очевидно, на коже, папирусе, пальмовых листьях, коре, а также выдавливались на глиняных табличках и печатях. Примерно каждый третий знак этого письма явно развился из пиктограмм, но происхождение остальных неизвестно. Некоторые пиктограммы и знаки линейного письма А показаны на рис. 8. Знаки писались слева направо, из них расшифрованы лишь те, что обозначали числа. Они свидетельствуют, что минойцы пользовались десятичной системой: единица изображалась вертикальной чертой, десять – точкой, а позже горизонтальной чертой, сто – кружком, тысяча – кружком с четырьмя короткими выступающими черточками, а дробь – знаком «L». Глиняный диск из Феста, относящийся к этому же периоду, представляет собой еще один нерасшифрованный тип письма, не связанный с минойской письменностью. Судя по характеру знаков, этим письмом пользовался народ воинов и мореплавателей, так как некоторые из них изображают корабль, азиатский лук, шлем с плюмажем и круглый щит. Возможно, эта письменность происходит с Эгейских островов или с побережья Малой Азии. Язык минойского линейного письма и фестского диска не греческий, но, вероятнее всего, принадлежал доэллинским средиземноморским племенам[3].
В 1700–1600 гг. Крит вел обширную торговлю с Библом и Угаритом на побережье Сирии, а также с Кикладами. Милос служил обменным рынком, через который минойские товары попадали в материковую Грецию и другие районы Эгейского бассейна, а сам Крит стал культурным центром эгейского мира.
2. Минойская цивилизация
Вершина расцвета Крита приходится на 1600–1400 гг. В Закро (юговосточный Крит) был построен великолепный дворец, разрушенный около 1450 г., вероятно, в связи с извержением на Фере. Два типичных города этого периода раскопаны в Гурнии и Псире. Первый – рыночный город, расположенный на невысоком холме, – имел мощеные улицы, которые шли горизонтальными террасами вокруг холма и были связаны друг с другом лестницами. В дома, поднимающиеся ярусами по склонам холма, с улицы вели ступени. По ним попадали в комнаты главного этажа, а ниже находился подвал. На вершине холма стоял особняк повелителя, выходивший в открытый двор и построенный из отесанного камня, в то время как другие дома сооружены из небольших камней, скрепленных глиной. Псира, приморский городок на маленьком острове, поднимается ярусами домов по склонам, обращенным к небольшой гавани; все дома построены из камня, а полы в них вымощены сланцем. Должно быть, оба города выглядели столь же живописно, как современные поселения Эгейских островов. Прекрасное представление об обыкновенном доме дает изображение на фаянсовой плитке раннего периода (рис. 5, а): окна в основном лишь на верхнем этаже (этажах), крыша плоская, а выступ наверху – вероятно, верхний ярус центрального светового колодца. Камни, зачастую клавшиеся на глину, скреплены деревянными балками. В богатых домах вход через световой колодец вел в главную гостиную на первом этаже, где также находились склеп с колоннами, ванная, уборная, прихожая и внутренние лестницы, которые вели в подвал с кладовыми и на второй и третий этаж, где размещались личные покои и спальни (рис. 5, 6). Для канализации использовались глиняные трубы, скрепленные узкими манжетами и глиной.

а) Критский дом 2-го среднеминойского периода. С фаянсовой плитки (фасад)

б) Богатый дом в Кноссе. Ок. 1600 г.

в) Храмовая гробница в Кноссе. Ок. 1600 г.

г) Дом в Тсангли (Фессалия). Средненеолитический период

д) Дом мегаронского типа в Димини (Фессалия). Средненеолитический период
Рис. 5 (а-д)

е) Большой дом в Лерне (Арголида). Раннебронзовый период

ж) Дом мегаронского типа в Эвтресисе (Беотия). Начало среднебронзового периода

з) Тронный зал, вестибюль и крыльцо в центре дворца Пилоса. Ок. 1200 г.
Рис. 5 (е-з)
Мужчины обычно носили набедренную повязку, узкий пояс, а иногда короткую юбку, женщины – юбку, узкий пояс и порой корсаж с глубоким вырезом, обнажающим грудь. Мужчины брили бороды. Представители обоих полов были гибкими и худощавыми, отращивали длинные волосы и вместе присутствовали на спортивных состязаниях и публичных церемониях. На фресках мы видим акробатов: мужчины и женщины, одетые в одинаковые набедренные повязки и пояса, кувыркаются на спинах бегущих длиннорогих быков. О мирной и веселой жизни на открытом воздухе свидетельствуют сценки, изображающие боксеров в перчатках, пирующих сборщиков урожая, танцующих девушек, пьющих юношей и зрителей обоих полов, следящих за состязаниями и танцами. В великолепных изображениях цветов, деревьев, животных и рыб, выполненных нежными красками разнообразных оттенков, проявляется жизнерадостное отношение минойцев к окружающей их природе. Это самая распространенная тема живописи; военные сцены и даже изображения людей встречаются сравнительно редко.
То, что минойцы были очень религиозным народом, подтверждается частотой изображения культовых предметов – двойных топоров, двойных рогов для освящения и трехногих алтарей-столиков для жертвоприношений. Сами эти предметы были найдены в многочисленных святилищах, расположенных как внутри домов, так и под открытым небом. Главной фигурой минойского культа была женщина-богиня. Известно несколько изящных статуэток, изображающих ее в человеческом облике, не нагую, а в минойском платье. Главный ее атрибут – змеи, но также и деревья, птицы и животные, причем в первую очередь бык и голубка. Ее прислужницами обычно выступают жрицы и звероголовые люди, возможно представляющие зверей, связанных с культом богини, на какой-то церемонии. Акцент делается на природе и красоте, а не на вычурности и гротеске. Мужское божество обычно изображается в виде юноши. Кроме этой главной богини и юного бога, встречаются изображения других богинь и богов, последние часто держат копье или щит, но во многих случаях трудно определить, кто именно изображен – бог, жрец или верующий.
Любая попытка реконструировать внутренний смысл и значение минойской религии неизбежно опирается на более поздние аналогии и предположения, возможно уводящие нас от истины. Даже теории о том, что главная богиня этого культа является богиней-матерью, повелительницей животных и богиней деторождения и что бог-юноша – ее сын и возлюбленный, основаны в основном на хорошо известных малоазиатских культах исторического периода. С большей или меньшей уверенностью можно сказать лишь, что минойская религия была антропоморфной по своей концепции и связывала физическую красоту окружающего мира скорее с женским, а не с мужским началом, а также, что минойские верующие, изображенные с воздетыми руками или ладонями, прижатыми к вискам, испытывали скорее благоговение и восторг, а не страх перед сверхъестественным. Нет никаких серьезных доказательств и в поддержку мнения, что минойцы поклонялись умершим; напротив, простота общих погребений, при которых труп связывали и запихивали в большой сосуд или в глиняный гроб, говорит об обратном. Видимо, лишь более зажиточных людей хоронили в высеченных в скале склепах, простых шахтных могилах или в гробницах, устроенных рядом с подножием шахты.
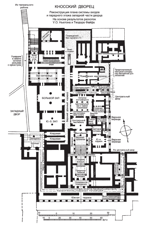
В годы расцвета минойской цивилизации на острове главенствовал Кносс. О его процветании выразительнее всего свидетельствует громадный Кносский дворец с величественными входами и залами, широкими лестницами и обширными кладовыми, изысканными росписями и превосходной кладкой. О значении религиозного культа свидетельствует святилище с колоннами на центральном дворе. Расположенная к югу от дворца изящная храмовая гробница (рис. 5, б), где из склепа с колоннами можно попасть в погребальную камеру, дает основания предположить, что в каком-то виде практиковался и культ умерших правителей Кносса. Согласно более поздней греческой традиции, правителя Кносса звали Минос, он был сыном Зевса и Европы, раз в девять лет советовался с Зевсом, а его супругой была Пасифая, дочь Солнца. Вполне вероятно, что правящие царь и царица Кносса брали себе такие имена в качестве династических титулов и обожествлялись, подобно современным им египетским фараонам. Возможно, на так называемом барельефе царь-жрец (с. 31) изображен Минос, царствовавший в XV в. О богатстве Кносса можно судить по широкому использованию минойскими ремесленниками драгоценных металлов и камней и по сокровищам из хранилищ дворца. Эти сокровища инвентаризированы на глиняных табличках по разновидностям и по стоимости. В хранилищах найдены и медные слитки, которые часто встречаются на острове. Эти слитки, без сомнения, были важны для торговли и, возможно, служили для обмена; однако никаких мелких денег не найдено. Процветание Кносса нельзя приписать исключительно эксплуатации природных ресурсов острова. Скорее всего, его источником являлась заморская торговля.

Рис. 6. Реконструкция плана парадных залов дворца. Ок. 1550–1400 гг.
В период 1600–1400 гг. Крит поддерживал очень тесные связи с Египтом. На фреске в могиле Сеннемут в египетских Фивах изображены послы, несущие золотые и серебряные сосуды минойской работы. На фреске в гробнице Рехмир показан прием чужеземных послов с дарами, и некоторые из них, судя по их платью и подношениям, возможно минойцы. Надпись на фреске гласит: «Мирное прибытие великих людей Кефтиу и островов посреди моря». Где находилась страна Кефтиу, неизвестно. Возможно, это был Крит, так как он главенствовал среди морских островов и, конечно, имел дипломатические отношения с Египтом. Кроме того, критские художники на свой лад перерабатывали мотивы, обычные для египетского искусства, такие, как обезьяны и кошки на фресках и папирус на глиняных сосудах. На фреске в Кноссе изображены чернокожие солдаты, возможно наемники из Ливии или Египта. Главный торговый путь в Египет шел из Комо около Феста в дельту Нила, либо прямо, либо через Ливию, где вдоль берега проходит восточное течение. В самом Египте найдено мало произведений критского искусства этого периода, в частности, только несколько предметов минойской или микенской посуды. Поэтому считается, что основными статьями критского экспорта в Египет были шкуры, мясо, фрукты, лес и металлы, а не масло и вино, которое перевозили в кувшинах. Возможно, торговый путь шел через Кипр, так как кипрское линейное письмо на табличке приблизительно 1500 г., найденной в Энкоми на Кипре, вероятно, восходит к минойскому линейному письму. В этот период минойское влияние на Угарит и Библ в Сирии было гораздо слабее, чем в 1700–1600 гг.
В Эгейском бассейне минойская торговля расширялась в 1600–1400 гг. В Ялисе на Родосе, который господствует над входом в Эгейское море, около 1600 г. была основана и процветала примерно до 1425 г. минойская колония. Минойское поселение существовало в Милете на побережье Малой Азии, а другое, вероятно, на Калимносе. Колония на Кифере просуществовала примерно до 1450 г. Таким образом, Крит контролировал морские пути, которые вели из Эгейского моря на юг. Киклады, особенно Милос и Фера, находились под сильным влиянием минойской цивилизации. В Филакопи на Милосе местные мастера освоили минойскую фресковую живопись. Минойское искусство имело большое влияние в восточных и южных областях материковой Греции, что хорошо видно по многим дошедшим до нас фрескам в Тиринфе, Микенах и Фивах. Минойские ремесленники, вероятно, селились на материке, а часто встречающееся название Миноя позволяет предположить, что в разных пунктах побережья существовали минойские торговые фактории. На западе минойские моряки добирались, возможно, до Липарских островов, где найдена минойская посуда XVI в., а может быть, до Мальты и Искьи.
3. Кносс в 1450–1400 гг
В момент наивысшего процветания Крита в Кноссе возникла отдельная культура (известная как 2-я позднеминойская). Время ее существования ограничено примерно 1450–1400 гг. Она ограничивалась пределами Кносса, не затронув остальную часть Крита. Характерной чертой этого культурного анклава были более тесные контакты с центрами микенской культуры в материковой Греции. Теперь Кносс ввозил или имитировал микенские вазы дворцового и эфирейского стилей и микенский алебастр (сосуды приземистых очертаний). В списках оружия, в том числе и боевых колесниц, и в кносских фресках прослеживается милитаристский дух, а под Кноссом были обнаружены шахтное погребение и так называемые «воинские гробницы», в которых нашли тяжелые наконечники копий и бронзовый шлем. Но все же более существенным было использование нового линейного письма в Кносском дворце и в некоторых дворцовых центрах на материке. Предположение, что этот культурный анклав контролировали микенцы, подтверждается расшифровкой нового линейного письма. Теперь нам известно, что язык этого линейного письма, ранее называвшегося линейным письмом B, греческий, в то время как язык линейного письма А явно не греческий; его можно назвать минойским, хотя минойский язык до сих пор не расшифрован. Переход от минойского линейного письма к микенскому линейному письму (как мы теперь можем называть линейное письмо А и линейное письмо B) доказывает, что правители Кносса в 1450–1400 гг. говорили по-гречески.
Микенское линейное письмо позаимствовало две трети своих слоговых знаков из минойского линейного письма, остальные же знаки, передающие лингвистические особенности языка, были изобретены заново. Вероятно, оно возникло в Кноссе, где долго использовалось минойское линейное письмо, а не на материке, который, видимо, до сей поры жил без письменности. Микенцы изменили систему обозначения чисел и, наверно, мер и весов, используя новые символы, один из которых, возможно, изображает боевую колесницу. Микенское письмо, как и предшествовавшее ему в Кноссе минойское, применялось главным образом для описи содержимого дворцовых хранилищ, в том числе воинского арсенала, и для записи дани, выплачивавшейся остальными критскими поселениями, которые, очевидно, подчинялись микенским правителям Кносса. Письмена наносили на сырые глиняные таблички (которые служили ярлыками в хранилище); из этих табличек уцелели лишь те, которые оказались обожжены во время сильного пожара. Необожженные глиняные таблички и другие недолговечные материалы, такие, как кожа, папирус и кора, давным-давно бесследно исчезли; но примечательно, что на других уцелевших предметах, таких, как посуда, надгробия, металлическая утварь и так далее, письмена почти не встречаются. Насколько позволяют судить имеющиеся свидетельства, похоже, что микенское письмо использовалось в первую очередь, а возможно, исключительно для записи сведений о собственности и ее передаче из рук в руки в пределах правящего класса и что писцы были опытными слугами государства или богачей. На материке это письмо было в употреблении, по крайней мере, до 1200 г., и все 200 его знаков никак не менялись, из чего можно сделать вывод, что письменность была консервативным искусством, выполнявшим узкоспециальные функции.
Микенское линейное письмо еще не расшифровано до конца, поскольку неизвестно значение некоторых слоговых знаков. Поэтому прочтение и перевод табличек до сих пор весьма сомнительны, что отчасти происходит также из-за неточной передачи этим письмом греческого языка. Слоговые знаки соответствуют отдельным слогам; одни и те же знаки используются для согласных л и р, одни – для п, ф и б, одни – для к, х и г, а некоторые согласные в конце слогов опускаются, в то время как долгота гласных, таких, как эпсилон и эта, не учитывается, дифтонги обозначаются лишь первым гласным, а иногда (в ау, эу и оу) вторым гласным. Приходится полагаться на контекст, так как слоговые знаки для «ка-ко» могут обозначать либо «плохой», либо «бронзу», а «Керкира» пишется так же, как «Крокилея». Идеограммы (знаки для предметов) и символы для чисел несколько сужают поле интерпретаций, но о многом остается только догадываться. Важнейшим результатом расшифровки линейного письма стало доказательство, что его язык – греческий, а диалект может быть родственен классическому аркадо-киприотскому или эолийскому или и тому и другому. Табличики из Кносса дошли до нас благодаря сильному пожару, случившемуся около 1400 г., и можно предположить, что это письмо употреблялось к тому времени уже около пятидесяти лет. Таблички, вероятно, содержат некоторые греческие личные наименования, в том числе Кносс как «ко-но-со», а также ряд названий критских местностей, откуда во дворец присылали дань. Ничего похожего на имя Минос или каких-либо узнаваемых названий заморских городов, указывавших бы на существование Эгейской империи, не обнаружено, но точно известно, что на правителя Кносса трудилось много рабынь, а дань он получал со всего острова.
Возможно, смена правителей Кносса произошла благодаря династическому браку, а не вследствие войны или завоевания. В любом случае она не повлияла на культуру остального Крита, где минойское письмо употреблялось до 1400 г., а посуда и письмо микенского стиля не получили распространения. Но греческие правители Кносса, конечно, контролировали Крит силой оружия и обладали военно-морским господством в южной части Эгейского моря. Они не следовали примеру греческих правителей микенского мира и не строили массивных укреплений, без сомнения полагаясь, подобно воинам классической Спарты, не на стены, а на свое оружие, и Крит под их властью наслаждался миром. Еще один микенский анклав возник около 1450 г. на Родосе и существовал там одновременно с минойским поселением примерно до 1425 г., когда последнее пришло в упадок. Возможно, что микенцы на Родосе не зависели от микенцев в Кноссе и открыли новый торговый и пиратский путь, который покончил с монополией Крита на контроль над южной частью Эгейского моря.



