Технический углерод. Процессы и аппараты. Дополнительные материалы

- -
- 100%
- +
подогревателей ПВ220 (ПВ230) составит 450⁰С. в верхней части подогревателей и 775⁰С. в нижней части подогревателей. При такой температуре стенок не должно быть отложений техуглерода на стенках труб подогревателей и не должно быть опасности разрушения нижней трубной доски , так как допустимая температура применения стали, из которой изготовлены трубные решётки и трубы подогревателя(ст.20Х23Н18) составляет 1100⁰С. Необходимо отметить, что, как видно на рис.2.9., температура воздуха, поступающего в зимнее время года в подогреватель ПВ–74 может иметь отрицательные значения ( -8⁰С.). Поэтому подогрев воздуха в газоохладителе необходим.
2.6.6. Газоохладители необходимо заменить или усовершенствовать для обеспечения температуры подогрева воздуха не ниже 150⁰С.
2.6.7. Особое значение для сохранения целостности воздухоподогревателей имеет порядок пуска и остановки реакторов. По зарубежным рекомендациям необходимо при пусках и остановках реакторов соблюдать скорость подъёма или снижения температуры перед подогревателем в пределах 50–55⁰С./час. Такие рекомендации даны для подогревателя фирмы « ALSTOM», хотя каждая труба его имеет индивидуальный компенсатор. Тем более, такие же скорости подъёма и снижения температуры нужно соблюдать и для уголковых воздухоподогревателей. При этом температура газов перед подогревателями предварительного подогрева (ПВ74, ПВ92, ПВ125) будет изменяться равномерно в соответствии с изменениями температуры газов перед высокотемпературными воздухоподогревателями (ВПВ235, ВПВ250), что позволит избежать их разрушения в периоды пуска и остановки реакторов.
2.7. Перечень использованной литературы.
2.7.1. В.И. Ивановский Технический углерод. Процессы и аппараты. Омск. 2004.
2.7.2. В.Ю. Орлов. А.М. Комаров. Л.А. Ляпина. Производство и использование технического углерода для резин. Ярославль. 2002.
2.7.3. Регенерация тепловой энергии. Технические достижения в области высокотемпературных теплообменников. Материалы 11-ой международной конференции по техническому углероду. Рим. Ноябрь 2010.
2.7.4. Б.П.Тебеньков. Рекуператоры для промышленных печей. Металлургия, М., 1965.
2.7.5. И.М. Лемлех., В.А. Гордин. Высокотемпературный нагрев воздуха в чёрной металлургии. Металлургиздат. М., 1963.
2.7.6. Изделия SCHACK для промышленности технического углерода. 2012.
2.7.7. Лисиенко Р.Г. Хрестоматия энергосбережения «Теплоэнергетик», Москва, 2003. Книга 2, стр. 544.
2.8.Приложения.
2.8.1. Тепловой расчёт воздухоподогревателей (рекуператоров).
При проектировании воздухоподогревателей сначала определяют коэффициенты теплоотдачи по воздуху и газу, а затем рассчитывают коэффициент теплопередачи рекуператора по следующей формуле:
К= , где К – коэффициент теплопередачи рекуператора, а αв и αг коэффициенты теплоотдачи по воздуху и газу.
В связи с тем, что на заводах техуглерода производятся периодические обследования работы воздухоподогревателей и систем подогрева воздуха/2.7.1.стр.82/, определение коэффициентов теплоотдачи по газу и воздуху для расчёта коэффициента теплопередачи не требуется. Коэффициенты теплопередачи воздухоподогревателей рассчитываются по измеренным данным. Фактический коэффициент теплопередачи К, вт/м²град определяется из основного уравнения для расчёта рекуператоров: Q= К·F·Δtср. Отсюда К=, где
К—коэффициент теплопередачи рекуператора, вт/(м²·град) или (ккал/м²·час·град);
Q – количество тепла, переданное в рекуператоре воздуху от углеродогазовой смеси, вт.
Δtср – средний температурный напор (средняя логарифмическая разность температур) определяется по формуле: Δtср= Δtб– Δtм/2.3lg·Δtб/Δtм ⁰С.;
F– поверхность нагрева рекуператора, м².
Количество тепла, необходимого для нагрева воздуха определяется по формуле:
Q= Vв·Св·Δt, вт., где
V– объём воздуха, нм³/час.;
Св – объёмная теплоёмкость воздуха, кДж/м²· град.;
Δt – разность температур воздуха на входе в рекуператор и на выходе из него (температура воздуха до и после рекуператора). Не путать Δt и Δtср.
Для определения коэффициентов теплопередачи действующих воздухоподогревателей (рекуператоров) достаточно данных, полученных при обследовании систем подогрева воздуха/7.2.1.стр.82/. Поверхность нагрева подогревателей известна, объём воздуха нм³/час измеряется постоянно, средняя логарифмическая разность температур Δtср легко определяется, в том числе с использованием номограммы, приведённой в этом приложении; средняя теплоёмкость воздуха определяется по таблицам; разность температур воздуха до и после нагрева в рекуператоре Δt определяется по результатам обследования.
Пример.
Рассчитать коэффициенты теплопередачи в подогревателях ПВ–74 и ПВ–230 по фактическим данным (рис. 2.9.).
Подогреватель ПВ– 74. Исходные данные.
– Температура воздуха на входе в подогреватель ПВ–74 – (-8).
– Температура воздуха на выходе из подогревателя ПВ–74 – 235⁰С.
– Расход воздуха составляет 8750нм³/час при 20⁰С.
– Поверхность нагрева воздухоподогревателя – 74м².
– Объёмная теплоёмкость воздуха – 1,31кдж/м²·град.
Количество тепла, использованного для нагрева воздуха:
Q= V·Cв·Δt= 8750·1,31·[ 235– (-8)]/3,6= 773719вт.
Средняя логарифмическая разность температур Δtср составит:
235⁰С. -8⁰С.
634⁰С. 541⁰С.
Δtм=399⁰С. Δtб= 549⁰С.
Так как Δtб/Δtм <2,0 средняя разность температур определяется как среднее арифметическое, то есть: Δtср = (549+399)/2= 474⁰С. (В том случае, если большая разность температур не превышает меньшую разность температур более чем в 2 раза, то Δtср определяется как среднее арифметическое).
Определим коэффициент теплопередачи подогревателя ПВ–74:
К= 773719вт/(474 ⁰С.·74м²) = 22,1вт/м²·град.
Невысокое значение коэффициента теплопередачи связано с низкими расходами воздуха и газов, а следовательно и с низкими скоростями этих агентов и низкими коэффициентами теплоотдачи по газу и воздуху, от которых напрямую зависит коэффициент теплопередачи: К= αв· αг̸αв+αг .
Рассчитаем коэффициент теплопередачи подогревателя ПВ230 (рис.2.9.).
Исходные данные: Qв= 8750м³/час; tвн.= 235⁰С. tвк= 702⁰; tгн=845⁰С. tгк=634⁰С. F= 230м³; Св.= 1,34кдж/(м³·град).
Определим среднюю логарифмическую разность температур:
702⁰С. 235⁰С.
845⁰С. 634⁰С.
Δtм= 143⁰С. Δtб= 399⁰С.
Δtср=220⁰С. Определение средней логарифмической разности температур произведено по номограмме 2.8.2., имеющейся в приложении.
Определим коэффициент теплопередачи ПВ–230:
Q= 8750·1,34·(702-235)/3,6=1520993вт.
К=1520993/230·220= 30,1вт/м²· град.
В рассмотренном примере определены коэффициенты теплопередачи для подогревателей системы обогрева, предлагаемой для нагрева воздуха до 700⁰С. в производстве техуглерода серий 500 и 600.
При расчёте коэффициентов теплопередачи для подогревателей наиболее распространённой системы подогрева воздуха, подаваемого в реакторы для получения протекторных марок техуглерода (рис.2.3.), получены следующие результаты:
– общий коэффициент теплопередачи всей системы подогрева
Кобщ=35,47вт/м²·град;
– Коэффициент теплопередачи подогревателя ПВ–74 составляет
К1=32,33вт/м²·град;
– коэффициент теплопередачи противоточной секции ВПВ–235 составляет
К2=43,8вт/м²·град;
– коэффициент теплопередачи прямоточной секции ВПВ–235 составляет
К3= 59,2вт/м²·град.
Количество тепла, поступающее от различных элементов системы подогрева для нагрева воздуха, подаваемого в реакторы (рис.2.3.):
– подогреватель предварительного подогрева воздуха ПВ–74 (F=74м²)– 29.5%;
– противоточная секция ВПВ235 (F= 219,8м²) – 54,9%;
– прямоточная секция ВПВ–235 (F=15,2м²) – 15,6%.
Отсюда видно, что подогреватель ПВ–74, изготовленный из обычной корозионностойкой стали обеспечивает почти 30% тепла в высокотемпературном процессе нагрева воздуха.
2.8.2. Номограмма для определения Δtс

2.8.3. График и номограмма для определения коэффициента теплоотдачи
α=1,163·А · (w𝛠d)⁰⁸/d

3 Использование химического тепла отходящих газов производства техуглерода.
3.1. Введение.
В предыдущем разделе было рассмотрено использование физического тепла газов, образующихся в реакторе для получения техуглерода, при этом в этом разделе было рассмотрено только использование тепла газов, выходящих из реактора, для нагрева технологического воздуха. Это связано, прежде всего, с тем, что из всех технологических агентов, подаваемых в реактор, масса воздуха составляет наибольшую величину, что позволяет возвратить в процесс значительную часть тепла газов, выходящих из реактора. Используется физическое тепло отходящих газов, образующихся при получении техуглерода, также для получения пара и подогрева сырья /3.7.2. /.стр. 72—89. Имеются сведения и о применении различных типов оборудования для использования тепла отходящих газов, образующихся при производстве техуглерода. Такое оборудование широко используется на ряде заводов ведущих зарубежных фирм по производству техуглерода. Однако внедрять такое оборудование на действующих производствах нужно только после тщательного анализа. Так, установку закалочного котла можно производить только при гарантии полного использовании полученного пара. Кроме того, монтаж такого котла возможен только при полной реконструкции реакторного отделения установки. Целесообразность установки котла после подогревателя сырья тоже связана с возможностью стабильного использования выработанного пара, хотя такой котёл совместим с действующим оборудованием некоторых технологических потоков, например, потоков цеха №3 ОЗТУ. Таким образом, на действующих технологических потоках гарантированно можно использовать физическое тепло отходящих газов производства техуглерода только для подогрева воздуха и сырья. На действующих заводах техуглерода увеличение объёмов выпуска пара лучше производить за счёт реконструкции действующих котлов, работающих на отходящих газах производства техуглерода, и строительства дополнительных котлов такого же типа. Такие котлы работают надёжнее, чем оборудование технологических потоков, кроме того они имеют резервное топливо, что позволяет стабильно обеспечивать паром заводские подразделения.
3.2. Использование отходящих газов, образующихся при производстве техуглерода.
Отходящие газы производства техуглерода относятся к низкокалорийным газам, которые используются в качестве топлива в тепловых и энергетических установках, причём из всех низкокалорийных газов, применяемых в промышленности, они имеют самую низкую теплоту сгорания. Так, доменный газ, который является побочным продуктом при выплавке чугуна в доменных печах, имеет среднее значение теплоты сгорания 4,1МДж/м³, смешанный генераторный газ – 5,15МДж/м³/3.7.1./. Отходящие газы производства техуглерода имеют теплоту сгорания (теплотворную способность по прежней терминологии) в пределах 2,085—2,6МДж/м³. Тем не менее это горючий газ, который, не смотря на низкую теплоту сгорания, широко используется в энергетических установках для получения пара. Кроме того, продукты сгорания отходящих газов применяются в качестве теплоносителя для сушки гранулированного техуглерода.
3.2.1. Сжигание отходящих газов в энергетических установках.
Сжигание отходящих газов производства техуглерода в паровых котлах имеет давнюю историю. Дожиг газов в котлах ДКВР 10/13 (производительность 10т/час и давление пара 13кг/см²) на Омском ЗТУ производился ещё в 50-х годах прошлого века. Стандартные котлы были оборудованы специальными предтопками и горелками, предназначенными для сжигания низкокалорийных газов. Основные работы проводил Московский энергетический институт (ЭНИН). К проекту привлекались «Теплопроект» и ЦКТИ (Центральный котлотурбинный институт). В 60-е годы в связи с быстрым развитием отрасли техуглерода по заданию Министерства нефтехимической промышленности на Белгородском котельном заводе начали изготавливать специальные котлы для использования в них в качестве топлива отходящих газов производства техуглерода (СК–29/24; ПКК–30/24; ПКК–75/24). Первая цифра в маркировке котла указывает на его производительность в тоннах/час, вторая на конечное давление пара в атм. Этими котлами стали обеспечиваться все заводы техуглерода при их строительстве и реконструкции. Однако не все котлы оказались равноценными. Если котёл ПКК–30 был надёжен в эксплуатации и обеспечивал проектные характеристики, то на котле ПКК–75 длительное время проектная производительность не была достигнута, надежность котла была не высокой. Котлы же ПКК–30 были модернизированы сначала на Ярославском заводе техуглерода, а в настоящее время и на Омском, в результате чего производительность их увеличилась до 40–42 тонн/час. (на 30–40%). Что касается подачи природного газа в горелки котлов для стабилизации горения отходящих газов, то в горелки котлов ПКК–30 Ярославского ЗТУ подаётся примерно 30нм³/час природного газа, что по количеству вносимого тепла составляет не более 2% от количества тепла, вносимого в котёл за счёт сжигания отходящих газов. Для стабилизации горения отходящих газов, сжигаемых в котлах ПКК-75, требуется подавать не менее 300нм³/час природного газа, что составляет > 8% от тепла, вносимого в топку котла отходящими газами.
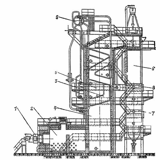
Выработка пара за счёт сжигания отходящих газов производства техуглерода в специальных котлах позволяет решить и другую важную задачу для заводов техуглерода—нейтрализацию вредных для человека газов, входящих в состав отходящих газов, образующихся при производстве техуглерода. К таким газам относится, прежде всего, окись углерода (СО), а также сероводород (H2S). На рис 3.1. показан специальный котёл, в котором в качестве топлива используются отходящие газы призводства техуглерода.
Рис 3.1.

Отходящие газы через горелку 1 поступают в предтопок котла 2, где присходит их сжигание. Для обеспечения сжигания отходящих газов в горелку подаётся нагретый воздух и небольшое количество природного газа для стабилизации горения и обеспечения заданной температуры продуктов сгорания газов. Из предтопка продукты сгорания по газоходу 4 проходят испарительные секции 3 (ширмы), пароперегреватель 5, а затем по выпускному газоходу 8 проходят воздухоподогреватель 6 и экономайзер 7. Все элементы котла состоят из системы труб, нагреваемых омывающими их продуктами сгорания. В трубах испарительных секций (ширмах) происходит кипение воды и образование пара, который затем поступает в барабан 9. В пароперегревателе 5 пар, поступающий из барабана, перегревается до температуры выше температуры насыщения (обычно до 370⁰С.). В воздухоподогревателе 6 нагревается воздух перед подачей в горелку. В экономайзере 7 нагревается питательная вода, поступающая в котёл.
Желательно, чтобы мощности котлов по объёмам дожигаемых газов в нм³/час соответствовала часовому количеству образующихся отходящих газов на заводе. Однако фактически на большинстве отечественных заводов техуглерода весь объём отходящих газов в котлах дожечь не удаётся, так как количества имеющихся котлов для этого недостаточно. Такое положение сложилось по разным причинам. Так, на Омском заводе техуглерода при строительстве цеха по производству каркасных марок техуглерода вместо четырёх котлов, предусмотренных проектом, по решению Министерства было построено только два котла. Сжигание отходящих газов с двух других потоков было предусмотрено в печи дожига газов. Такие печи были построены на всех заводах техуглерода в связи с отсутствием возможности полного сжигания отходящих газов в котлах. В среднем на российских заводах техуглерода примерно 30% отходящих газов сжигаются в печах дожига. Понятно, что сжигание отходящих газов производства техуглерода в специальных печах с целью их утилизации (обезвреживания) неэкономично, однако это необходимо производить для соблюдения природоохранных норм. Следует отметить, что на зарубежных заводах техуглерода по данным, сообщаемым на ежегодно проводимых международных конференциях по техуглероду (Carbon Black World), полезно используется только 20% химического тепла отходящих газов. Этот объём полезно сжигаемого отходящего газа длительное время подтверждается на всех конференциях по техуглероду. Возможно, что не учитываются результаты, достигнутые Китайской промышленностью технического углерода, но в любом случае понятно, что в отечественной промышленности техуглерода объём полезно сжигаемых отходящих газов никак не ниже, чем на заводах техуглерода зарубежных фирм.
Пар, вырабатываемый в котельных заводов техуглерода с применением в качестве топлива отходящих газов, используется как для внутренних потребностей заводов, так и поставляется другим предприятиям и организациям, в том числе и для обеспечения теплом и горячей водой жилых массивов. Большим и стабильным источником потребления пара стали электростанции, построенные в 2001–2002 годах на Ярославском и Омском заводах техуглерода, что позволило этим заводам обеспечить себя собственной электроэнергией. Ярославский ЗТУ в последние годы использует паровые турбины в качестве приводов для нагнетателей, подающих воздух в реакторы для производства техуглерода. Таким образом, в настоящее время имеются необходимые условия для более полного использования химического тепла отходящих газов за счёт реконструкции и строительства котлов, использующих в качестве топлива отходящие газы производства техуглерода. Следует отметить также, что отходящие газы производства техуглерода могут использоваться как топливо и в водогрейных котлах, которые эксплуатировались ранее на Ставропольском и Омском заводах.
3.2.2. Утилизация избыточных объёмов отходящих газов производства техуглерода.
Как уже отмечалось, из-за недостатка котлов, предназначенных для сжигания отходящих газов, а так же из-за проблем с реализацией пара, на большинстве заводов техуглерода имелся избыток отходящих газов, которые требовалось дожечь для обезвреживания вредных газов, входящих в состав отходящих газов. К таким газам относятся, прежде всего, окись углерода (СО), а также сероводород (H2S). При сжигании газов окись углерода окисляется до безвредного для человека углекислого газа (СО2), а сероводород, содержание которого в отходящих газах незначительно, переходит в менее опасный сернистый ангидрид (SO2). Предельно допустимая концентрация окиси углерода в воздухе на границе санитарно-защитной зоны заводов техуглерода составляет 5мг/нм³. Учитывая, что на воздух в местах отбора проб инспектирующими организациями могут оказывать влияние основные загрязнители атмосферы– автотранспорт и котельные ТЭЦ, работающие на угле и мазуте, заводам техуглерода необходимо обеспечить полное сжигание окиси углерода и сероводорода так, чтобы концентрация газов в источниках выбросов была ниже установленных норм. Поэтому в печах дожига газов необходимо обеспечить полное сжигание всех горючих газов, к которым относятся и окись углерода и сероводород. Сжигание отходящих газов в печах дожига сложнее, чем в котлах по ряду причин. В отличии от печей дожига газов в топки котлов подаётся нагретый воздух, что сокращает время на достижение температуры воспламенения газовоздушной смеси, а следовательно и ускоряет процесс сжигания газа. В печах дожига газов сжигается различное количество отходящих газов (в зависимости от количества работающих технологических потоков и котлов), что затрудняет их обслуживание. Тем не менее, за счёт хорошего смешения газа с воздухом в горелках, хорошей стабилизации пламени в огнеупорных каналах горелок, а также за счёт большого объёма топочного пространства в печах дожига газов обеспечиваются условия для полного сгорания отходящих газов производства техуглерода. Печи дожига газов имеют, как правило, большую производительность. Одна печь, оборудованная четырьмя стандартными горелками, может обеспечить полную утилизацию отходящих газов с двух технологических потоков.
Используются в промышленности техуглерода и другие способы сжигания отходящих газов. Так, длительное время отходящие газы дожигались на свечах. Свеча состоит из вертикальной трубы диаметром 1200 – 1400мм. и высотой 40—60м. В верхней части трубы установлены специальные горелки для сжигания низкокалорийных газов. На Омском заводе техуглерода подобная свеча использовалась в 60-х годах прошлого столетия для сжигания газов от производства активных марок техуглерода (первого в стране). Свеча была оборудована базальтовыми горелками с электроподжигом, доступ к горелкам осуществлялся по лестничным маршам (этажерке). Отходящие газы сразу же загорались от воздействия электрической дуги и устойчиво горели без отрыва пламени. Необходимо отметить, что отходящие газы с этого производства имели теплоту сгорания примерно на 20% выше, чем газы от производств лампового техуглерода, так как содержали меньше влаги из-за применения мокрой системы очистки газов. В дальнейшем отходящие газы от производства активных марок техуглерода использовались в качестве топлива в котлах котельной Омского шинного завода, а в свече дожигался только избыточный газ. Использовалась свеча и для дожига газов от производства каркасных марок техуглерода на Омском ЗТУ при ремонте печи дожига газов. Большое значение имела организация сжигания отходящих газов непосредственно на выхлопных трубах рукавных фильтров. В период внедрения этой разработки (начало 90-х годов) было доказано расчётами и подтверждено результатами анализов, что содержание вредных газов в факеле дожигаемых отходящих газов соответствует нормам, и что таким образом можно полностью дожечь газы, удаляемые из выхлопной трубы технологического потока без нанесения вреда окружающей среде. Однако инспектирующие организации согласовали сжигание газов на выхлопных трубах только при переходных режимах, то есть в периоды пуска и остановки потоков. Необходимо отметить, что сжигание отходящих газов при переходных режимах положительно сказалось на состоянии окружающей среды в санитарно-защитной зоне Омского завода технического углерода.
3.2.3. Условия обеспечения полного сгорания отходящих газов в котлах и печах дожига газов.
В котельных и печах дожига газов необходимо полностью сжечь отходящие газы, а для этого нужно создать условия для полного горения этих газов. Как известно, для протекания реакций горения необходимы: хорошее перемешивание горючих составляющих газа с кислородом воздуха, обеспечивающее их контакт, организация воспламенения смеси и обеспечение условий распространения пламени и устойчивости горения. ( Перед рассмотрением этого материала желательно ознакомиться с разделом 2.2. Основы теории горения газов, изложенные в источнике /3.7.2./).
Реакции горения. В отходящих газах производства техуглерода содержатся только четыре горючих газа. Приводим реакции (стехиометрические уравнения) горения этих газов:
Н2 + 0,5О2=Н2О; СО+05О2=СО2; Н2S+1,5O2=SO2; СН4+2О2=СО2+2Н2О. Так как горение происходит не в чистом кислороде, а в воздухе, то в обе части формулы добавляется азот, вносимый с воздухом, по соотношению N2= 79/21О2=3,76 О2.
Организация воспламенения смеси. Различают два вида воспламенения– самовоспламенение и вынужденное воспламенение (зажигание). При самовоспламенении весь объём горючей газовоздушной смеси постепенно доводится до температуры воспламенения, после чего смесь воспламеняется без внешнего теплового воздействия. (температура воспламенения отходящих газов производства техуглерода находится в пределах 600–750⁰С.).
Зажигание отличается от самовоспламенения тем, что смесь доводится до температуры воспламенения не во всём объёме, а только в небольшой части его каким-нибудь высокотемпературным источником (электрической искрой, запальником и. т. д.). В результате этого воспламенение передаётся на весь объём смеси путём распространения пламени, происходящего не мгновенно, а постепенно с определённой скоростью, зависящей от ряда факторов. В горелках выхлопных труб зажигание газов производится за счёт электрической искры, а в предтопках котлов и печах дожига газов применяются запальники, даже, если температура в предтопках выше температуры воспламенения отходящих газов (>750⁰С.). Это необходимо делать во избежание воспламенения газов хлопком.



