Современная архитектура Японии. Традиции восприятия пространства

- -
- 100%
- +
Дзюньитиро Танидзаки развивает главу из дзуйхицу Кэнко-хоси и превращает ее в самостоятельное произведение «Похвала тени» (1934 г.), ставшее необыкновенно популярным за пределами Японии. «Вне действия, производимого тенью, нет красоты: она исчезает подобно тому, как исчезают при дневном свете силуэты деревьев со стен комнаты». Самоопределяя японскую культуру и рассматривая «тень» как одно из безусловных понятий, необходимых для ее существования, Танидзаки подчеркивает, что никому, кроме японца, не свойственно понимание феномена «тень» в полной мере.
Национальный символ страны, Фудзияма, или Фудзи-сан – одна из сакральных точек японской природы, символ мощи, совершенства форм и пропорций – ей поклоняются уже много поколений японцев. Какие бы социальные или технологические перемены ни влияли на образ жизни японцев, они все так же будут любоваться неповторимым всеобъемлющим символом красоты. Японцы почитают также громадность Фудзиямы, особенно очевидную на фоне окружающей ее равнины и довольно невысоких гор. Их восхищение вызывает вечность и неизменность колоссальной горы. В тоже время японские художники тонко передают ее нюансы образа Фудзиямы в разное время суток и при смене сезонов[10]. Благоговение порождает не только сама гора, но и ее огромная тень. Для обозначения этого японского феномена было придумано специальное понятие «Кагэ Фудзи», обозначающее гигантскую тень, которую гора отбрасывает на море облаков и тумана при восходе и заходе солнца. Сам факт введения такого понятия, безусловно, свидетельствует о значимости для японцев данного природного явления. Иными словами, культурным символом Японии является не только величественная Фудзияма, но и ее гигантская тень.
Действительно, если сравнить в этой связи японскую культуру с западноевропейской, то обнаружатся кардинальные различия. В Европе выработанные веками образы уготовили первое место в сознании именно светлому началу. В западном менталитете свет идеализируется, соотносится с прозрением и символически рассматривается как источник знаний, благодаря которому человек раскрывает окружающий мир. Тень же заняла более скромное место. Наблюдение, как тень удваивает предметы реальной жизни, привело к приписыванию ей автономного существования, что в современном европейском сознании выразилось в наделении этого понятия смыслом «сходства». Но это значение несет резко отрицательный оттенок. В этом случае «тень» рассматривается как некий след, ничтожный отсвет оригинала.
В японской культуре наделение смыслом явления «тень», по-видимому, напрямую связано с синтоизмом: все имеет свое божество (ками) и поэтому каждое явление самоценно. И «тень» в художественном отношении представляет ценность сама по себе.
На мировоззренческом уровне эти различия выглядят особенно контрастно. В европейском представлении любые крайности отделяются друг от друга четкой границей. Как следствие, основными смысловыми единицами являются именно крайности. Между белым и черным есть серое, но на нем не только никогда не делается акцента, но и смысловое наполнение этого понятия показывает отрицательное к нему отношение (взять хотя бы выражения «серый человек», «серость»). Возможно, к «серости» потому так плохо и относятся, что она несет в себе оттенок неопределенности и ее нельзя отнести ни к одному, ни к другому полюсу.
В японской же культуре именно этот промежуток (срединная зона) доминирует над двумя полюсами. Вероятно, именно отрицательное отношение к любым крайностям и противопоставлениям в культуре Японии и привело к тому, что понятию «тень» уделяется такое значительное место среди других культурных категорий. Соединяя свет и мрак, «тень», занимая центральное место, видоизменяет привычную для европейца дуальную схему. Этим объясняется сложность ее понимания представителями западной культуры.
* * *Выделенные категории («пустота» – «промежуток» – «тень») имеют важнейшее значение для восприятия «японского» пространства. Каждый из современных архитекторов Японии выбирает свой угол зрения на комбинацию выделенной смысловой триады, предъявляет свое понимание традиции. Три шедевра каждого мастера могут помочь проследить тот путь (не во временнóм, а в смысловом значении) поисков и экспериментов, который был необходим каждому архитектору для определения своего отношения к культурному наследию.
Кунио Маэкава: архитектурные традиции в новых материалах
Еще студентом Маэкава присоединился к движению синкэнтику (новой архитектуры). Защитив в Токийском университете дипломную исследовательскую работу о Ле Корбюзье, Маэкава стал его последователем. В 1928 г. молодой архитектор приехал в Париж и устроился в бюро к знаменитому мастеру, предпочтя работать без оплаты, но усваивать принципы архитектуры современного движения непосредственно от ее лидера. Кунио Маекава стал одним из наиболее ярких представителей модернистской архитектуры Японии. Начало его творчества совпало с противостоянием двух позиций в профессиональной среде японских архитекторов – традиционалистской и модернистской. Каждая из них имела своих сторонников и последователей. Традиционалисты, поддерживая современные методы строительства, считали возможным применять их к сооружениям, создаваемым в различных исторических стилях. Модернисты, напротив, стремились генерировать новые архитектурные формы, которые, по их мнению должны не только соответствовать новым материалам и методам строительства, но и отражать дух нового времени.
Основной период творчества К. Маэкава пришелся на 1960-е гг. Архитектор с интересом экспериментирует с современными для своего времени материалами (прежде всего, бетоном, железобетоном). С конца 1950-х гг. Маэкава стал уделять особое внимание традиционным элементам японской архитектуры, непременно включая их в собственный проект. Не скрывая, а, наоборот, подчеркивая текстуру новых материалов, мастер тем не менее стремился к воспроизведению традиционных канонов архитектуры, уделяя особое внимание пространственному восприятию. Именно тогда в архитектурной критике заговорили о развитии «стиля Маэкава».
Первые шаги в этом направлении архитектором были сделаны при проектировании здания Филармонического зала в Киото (Kyoto Kaikan, 1960 г., См. вкл.: илл.1). Он стал первым многофункциональным учреждением культуры в Японии, предназначенным для проведения концертов, кинопоказов, лекций. По замыслу архитектора постройка должна была играть заметную градообразующую роль. Здание Филармонического зала в Киото сразу стало главным средоточием культурной жизни города, привлекая людей также и открытым общественно-рекреационным пространством, доступным для свободного посещения.

К. Маэкава. Филармонический зал в Киото (1960 г.)
Поднятая на опорах постройка имеет массивные горизонтальные объемы. Внутренний двор выполняет функцию обязательного сада в традиционном японском жилище. Сильно выступающие вогнутые карнизы «затеняют» внутреннее пространство залов, имеющих почти сплошное остекление. За счет этого проникающий внутрь естественный свет «смягчается», наполняя интерьер традиционной для Японии пространственно-эстетической характеристикой – полутенью.
Здание Метрополитен-Фестиваль-холл в Токио (Tokyo Metropolitan Festival Hall), построенный в парке Уэно в 1961 г. выполнен в духе основных приемов Ле Корбюзье. Маэкава использует структурные и эстетические возможности монолитного железобетона, добиваясь при этом почти скульптурной выразительности. Главные особенности постройки имеют много общего с такими сооружениями Ле Корбюзье, как например, здание Ассамблеи в Чандигархе или часовня Роншан. Здание Метрополитен-Фестиваль-холл имеет многофункциональное назначение, в нем объединены концертные залы, залы для конференций, рестораны и т. д. Архитектор своей постройкой органично дополнил стоящее напротив здание Национального музея западного искусства, возведенного Ле Корбюзье двумя годами ранее (1959 г.). Важно понимать, что Маэкава не стилизовал свою постройку под европейский модернизм, а создал интересный диалог с произведением своего учителя, представив не менее яркое пластическое решение и характерность архитектурного образа.
Маэкава вписывает постройку в окружающую городскую среду, пользуясь запасом символов, устойчиво существующих в культуре на протяжении уже многих веков. Виртуозно используется культ промежуточной зоны, которая находит свое воплощение в опоясывающем здание со всех сторон балконе. Прежде всего, это помогает плавному перетеканию пространств и органичному соединению интерьера и внешнего окружения. Железобетонная кровля с огромным вывернутым вверх козырьком становится инверсией формы традиционной кровли. Сильно выступающий карниз затеняет промежуточную зону балкона, создавая эффект полноценной «энгава» традиционного японского дома, всецело удовлетворяющей не только своему функциональному назначению, но и соответствующую древним эстетическим канонам. Помимо сохранения традиционной пространственной организации, даже внешний вид здания наводит на очевидное сравнение со средневековыми японскими деревянными постройками, получившими современное развитие в железобетоне.

К. Маэкава. Метрополитен-Фестиваль-холл в Токио (1961 г.)

К. Маэкава. Музей в Окаяме (1962–63 гг.)
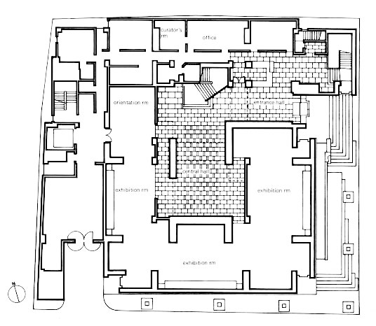
Музей в Окаяме (Okajama Museum of Arts, 1962–63 гг.) имеет довольно компактный план, согласно которому все помещения расположены вокруг внутреннего дворика. В одном крыле здания находятся выставочные залы, в другом – помещения для администрации и лекционные залы. Весь комплекс решен с большим мастерством. В искусной комбинации использованы простые материалы: кирпич для стен, бетон для несущего каркаса, каменная кладка для цокольной части здания.
Наружные стены выставочных помещений полностью глухие, поэтому в интерьерах используется исключительно искусственное освещение. Вестибюль и фойе, напротив, полностью остеклены, «впуская» естественный свет. Эти единственные открытые вовне помещения принимают на себя функции промежуточной зоны традиционного японского дома и соединяют внутреннее пространство залов с окружающей средой так же мягко, как и осуществляется с их помощью переход от темноты к свету или от искусственного освещения к естественному. Неотъемлемую часть архитектурного замысла составляет планировка подходов к зданию. Между лестницами устроены лужайки с посаженными на них деревьями. Из традиционной японской архитектуры (например, расположения синтоистских храмов, домиков для чайной церемонии) умело воспроизведена режиссура прохождения человека к постройке и открывающаяся ему «смена декораций» природного окружения и точек зрения на архитектуру.
Сочетая национальные традиции с использованием структурных и эстетических возможностей монолитного железобетона, Маэкава добивался просто скульптурной выразительности своих произведений.
Кэндзо Тангэ: архитектура как функция и символ
Создавая свои произведения, К. Тангэ рассматривает традиционные пространственные категории, сформировавшиеся в культуре, как «материал», который можно наполнить новым запасом символов. Архитектор относится к багажу традиций как к фундаменту, который нужно надстроить уже на новом, более современном уровне. Ведь именно так, при деликатном отношении, он сумеет в полной мере сохранить свои качества. Символическое наполнение пронизывает все работы мастера. Однако символы, раскрывающие содержание какого-либо произведения, напрямую зависят от его функционального назначения. «Мы могли бы сказать, что пространство обладает своим собственным метафизическим значением. Пространство – это мир значения. ‹…› Нам нужен символический подход к архитектуре и городскому пространству»[11]. Своими произведениями Тангэ подтверждал собственную концепцию, по которой пространство архитектурного сооружения требует символического выражения своей функции.

К. Маэкава. Музей в Окаяме. План
Проектирование культовых сооружений в новых формах как распространение смелых художественных идей началось в Японии еще в 1930-е гг. Однако после Второй мировой войны на долгое время эксперименты в этой области были прерваны. Архитекторов современного направления старались не приглашать для строительства храмов, лишь с конца 1950-х – начала 1960-х гг. у них появилась возможность работать в области культовой архитектуры, развивая идеи пластического символизма. Начало 1960-х для Тангэ – это время исследований и экспериментов в области создания архитектурной формы за счет использования новых материалов и технологий. Вершиной его экспериментов становятся два шедевра того времени: комплекс Олимпийских стадионов и собор Святой Марии в Токио.
Прежде чем взяться за создание католического храма, Тангэ много путешествовал по Западной Европе и изучал традиции культовой архитектуры разных стран. Проект нового храма он создавал при участии Вильгельма Шломбса, главного архитектора кёльнской епархии, и швейцарского архитектора Макса Лехнера, а также с привлечением своего неизменного помощника и коллеги по многим проектам – инженера-конструктора Ёсикацу Цубои. Собор возводился с 1962 по 1964 г. В этом проекте автору пришлось соединить западный (христианский) и восточный (синтоистский) принципы.
Кафедральный собор Св. Марии (St. Mary's Cathedral) в Токио был спроектирован с учетом символического раскрытия его предназначения. Первое, что обращает на себя внимание при встрече с собором – его уединение. Контраст проявится более резко, если сравнить его с католическими соборами в Европе. Перед собором Св. Марии нет открытого общественного пространства, с которого можно было бы насладиться его величием, как это принято в европейском восприятии. Более того, церковь находится рядом с шумной магистралью, прячется среди других зданий, плотно окружающих ее со всех сторон. Это стремление спрятать культовое сооружение, сокрыть его от любопытных глаз – древняя японская традиция. Все синтоистские святилища скрыты в лесу. Даже в крупном мегаполисе, оказывается, можно изыскать возможности «спрятать» святилище в глубине двора или парковой зоны. Самые важные из них, например знаменитое святилище Исэ, человеку не удастся полностью увидеть никогда. А единственный способ окинуть собор Св. Марии взглядом целиком – это подняться на расположенный по соседству пешеходный мост. Только так можно получить представление об истинных размерах и пропорциях постройки. Находясь на земле, этого сделать не удастся.
Форма собора очень лаконична (См. вкл.: илл.2). План храма ромбовидный, что представляет собой один из символов древнехристианского искусства – рыбу. От ромбовидного плана совершается сложный переход к крестообразному завершению. Стороны церкви соединяются с вершинами креста с помощью восьми кривых, называющихся гиперболическими параболоидами. Размеры креста – 55,5 м в длину и 40 м в ширину. Таким образом, вид на собор сверху – это вид на удлиненный латинский крест, подчеркивающий его принадлежность к католичеству.
Крестообразное завершение храма – это световой проем. Дневной свет, проникающий в церковь в форме креста, символически наполняет ее пустой интерьер божественным благословением, за которым приходят в храм верующие. Изогнутые стены собора имеют форму паруса, края которого приподняты, и торцы также представляют собой вертикальные световые проемы шириной 2 м. Высота торцевых частей от 30 до 40 м. Таким образом, любое положение солнца дает эффект креста внутри собора, независимо от того, в какое крыло попадают его лучи.
Ключевым моментом в создании художественного облика интерьера, затмевающим по силе воздействия все остальное, стало оформление алтаря. Высокий строгий крест алтаря по ширине совпадает с остекленным проемом в торцевой части собора. Алтарное пространство – это самая высокая часть собора – 40 м. Расположен алтарь, согласно канону, на востоке, поэтому во время утренней службы восходящее солнце поднимается в алтарной части над крестом, освещая всех прихожан благодатным светом. Противопоставление внешнего и внутреннего пространства собора (как символизирующее светское и церковное) усиливается выбранным материалом. Блестящая нержавеющая сталь, которой покрыта наружная часть стен, контрастирует с необработанным бетоном, используемым в интерьере. Можно сказать, что свет отражается от гофрированной поверхности металлической облицовки наружных стен, подчеркнуто разводя смыслы. Ведь только попадая в интерьер, свет становится божественным.

К. Тангэ. Кафедральный собор Св. Марии в Токио (1962–64 гг.)

К. Тангэ. Кафедральный собор Св. Марии в Токио. План
В отличие от яркого, ослепительно сверкающего в солнечный день наружного покрытия собора, его интерьер очаровывает своими мрачными тонами и незавершенностью текстуры бетона. Это сделано в полном соответствии с японской концепцией ваби-саби, свидетельствующей о красоте незавершенных вещей и характеризующей способность японцев воспринимать прекрасное в своем первозданном естестве, без излишеств – всматриваться в незаметное, вслушиваться в недосказанное. Необработанные бетонные стены представляют собой строгое зрелище, которое становится величественным и прекрасным при контакте со светом, проникающим внутрь через крестообразное завершение и удлиненные окна в торцах постройки. Объединяет архитектурно-художественный облик собора и оформление его интерьера простота, даже аскетичность используемых материалов и отсутствие декора. Всем своим творчеством Тангэ подчеркивал важность одного из своих творческих кредо – сохранять честность по отношению к материалу. Если материал выбран правильно, скрывать, а тем более украшать его не нужно, он сам должен проявить свою действенную функциональность (хатараки).
Внутри собора, где нет ни одной колонны, создается большое пустое пространство (См. вкл.: илл.3). Это сделано для того, чтобы появился специальный звуковой эффект, сопоставимый с тем, который производили каменные церкви эпохи Возрождения и Барокко в Европе. В соборе Св. Марии помещен один из крупнейших в Японии органов. Его звучанию придавалось особое значение, поэтому лучшие специалисты следили за установкой инструмента. На монтаж и настройку огромного органа ушло 2 месяца. Звук, исходящий от него, проходит эхом по зданию, вторя церковному пению и молитвам. Когда в соборе пусто, эхо длится до 7 секунд.
Олимпийский спортивный комплекс Ёёги (Yoyogi National Gymnasium) в Токио (1964 г.), состоящий из большой и малой арены, справедливо считается шедевром Тангэ. Спортивный комплекс решено было разместить в парке Ёёги, по которому он и получил свое название. Комплекс Ёёги, включающий большую и малую арены – признанный шедевр мировой архитектуры. Он состоит из зданий крытого бассейна и универсального спортивного сооружения, которые соединяются друг с другом масштабным стилобатом. На стилобате, как на подиуме, расположены аллеи, площадки и главные входы в большую и малую арены. В соединительном корпусе между большой и малой аренами размещены административные службы, ресторан, тренировочные бассейны, медпункт и залы ожидания.

К. Тангэ. Олимпийский спортивный комплекс Ёёги в Токио (1961–64 гг.). Общий вид

К. Тангэ. Олимпийский спортивный комплекс Ёёги. План
Конструкции кровель над обоими залами являются главной особенностью комплекса и неоспоримым достижением в создании пространства архитектурного сооружения. Достигнутая пластичность построек стала возможна только благодаря уникальной конструктивной схеме. Покрытия обоих стадионов представляют собой вантовые подвесные конструкции, закрученные подобно улиткам. В их основе – системы стальных тросов, подвешенных к железобетонным опорам.
Для главного олимпийского стадиона архитектор соорудил перекрытие, которое стало для своего времени самым большим в мире. Его вантовые конструкции опираются на 130-метровый мост. По обе стороны моста, выполняющего функции «хребта» постройки, натянуты металлические тросы, к которым крепятся стальные панели. Мост, в свою очередь, также образован двумя мощными тросами, подвешенными к высоко поднимающимся пилонам. В плане стадион представляет собой два неполных полукруга, каждый из которых по противоположным концам переходит в кривую большого радиуса. Длина выступающей части – 65 м. Именно здесь расположены основные входы для зрителей. Специально предусмотрены отдельные входы для спортсменов и прессы.
Конструкция прекрасно приспособлена к экстремальным условиям существования на японских островах. Криволинейная обтекаемая поверхность здания очень хорошо противостоит сильным ветрам, опасным для сооружений такого размера, особенно с крышей-мембраной.
Пластичная форма нижней части постройки выполнена из бетона. По винтовой линии бетонной части устроено остекление, позволяющее максимально использовать дневной свет. Для естественного освещения, а также для размещения осветительных устройств служит находящийся сверху веретенообразный промежуток между тросами моста. Создавая любое свое произведение, Тангэ особое внимание уделял освещению интерьера. Внутреннее пространство его построек всегда включается в загадочную и неуловимую игру светотени. Не стали исключением и спортивные сооружения, выразительность конструкции которых только усиливается благодаря грамотному освещению.
Еще одной, поистине поэтической характеристикой комплекса Ёёги является ритм. Присутствие ритма всегда отмечается в традиционной архитектуре Японии как одна из самых ярких ее составляющих. Кэндзо Тангэ сумел «оживить» эту традицию, сделать ее современной. В здании большой спортивной арены изящные консоли разделяют ритмично расположенные окна в винтовой части постройки См. вкл.: илл.4). Ритм ясно читается в области входа, где главной характерной деталью является V-образная металлическая структура, динамично повышающаяся с одной стороны и понижающаяся с другой.

К. Тангэ Большая спортивная арена
Внутреннее пространство большого стадиона организовано симметрично. Относительно продольной оси вдоль бассейнов помещены не смыкающиеся друг с другом две двухъярусные трибуны. Арена расположена ниже уровня земли, поэтому зрители, войдя в здание, попадают на средний уровень трибун, откуда можно спуститься вниз или подняться наверх. Вместимость трибун 13246 мест, а при использовании зала для хоккея или дзюдо количество зрительских мест можно увеличить до 16 тысяч.
Многофункциональность главного зала большой спортивной арены, его способность к трансформации – одна из удачных находок архитектора, позволяющая использовать зал как для летних, так и для зимних видов спорта. Прежде всего, здание большой арены известно как бассейн, имеющий девять 50-метровых дорожек. Но водная поверхность бассейна может быть закрыта плитой, образуя свободное пространство, которое используется для других соревнований (борьбы дзюдо и конькобежного спорта). Проектируя спортивный комплекс, в котором использовались передовые технические достижения (вантовые подвесные конструкции были известны в разных странах с 1950-х гг.), Тангэ сумел отразить в них и культурные традиции своей страны. Прием «сворачивания» заполняющих пространство, но ненужных в данный момент вещей для получения пустого зала связывает Олимпийский стадион с пониманием устройства интерьера в традиционном японском доме.
Закручивающаяся раковина малой арены не менее выразительна. В малом спортивном зале вантовые конструкции опираются на один высокий пилон, к вершине которого они тянутся спирально. Конструкция этого зала определила и его планировочное решение. Внутри расположена универсальная круглая арена с кольцом трибун переменной высоты. Используется она чаще всего как баскетбольная площадка или для боксерских поединков. Мачта смещена относительно центра. Соответственно, спортивная площадка также смещена в сторону относительно центра стадиона. Малая арена круглая в плане с диаметром 65 м.
Во время соревнований стадион может вместить от 3500 до 5000 зрителей. Вогнутость покрытий здания обеспечила его хорошие акустические свойства, благодаря которым малый стадион стал излюбленным местом проведения концертов. Освещение интерьера создано с грамотно расставленными акцентами – подчеркивается вершина спирали, что позволяет пространству устремляться ввысь. Интерьер малого зала весьма изыскан, в нем серый цвет бетона удачно сочетается с коричневым цветом дерева, полы под трибунами выложены плитами из сланца.




