Курс «Применение трубопроводной арматуры». Модуль «Арматура и оборудование морских платформ»

- -
- 100%
- +
Конструктивно станция управления СУФА77 разделена на следующие основные составные части:
– насосно-аккумуляторная установка, включающая силовое гидравлическое оборудование, необходимую пусковую и регулирующую арматуру, гидравлический предохранительный контур, модуль контроля возгораний и аварийных выключений;
– восемь модулей управления эксплуатационными скважинами;
– один модуль управления газонагнетательной скважиной;
– два модуля управления водонагнетательными скважинами;
– электрооборудование и комплекс программно-технических средств.
Станция управления СУФА 77 управляет одиннадцатью скважинами:
– восемью эксплуатационными скважинами;
– двумя водонагнетательными скважинами;
– одной газонагнетательной скважиной.
Конструкция станции после ее дооснащения дополнительными модулями позволяет управлять восемнадцатью скважинами, а именно:
– тринадцатью эксплуатационными скважинами;
– тремя водонагнетательными скважинами;
– двумя газонагнетательными скважинами.
Одной из отличительных особенностей станции управления СУФА77 является то, что она не имеет единого шкафа для размещения оборудования, при этом ее составные
части компактно размещены в отдельном помещении.
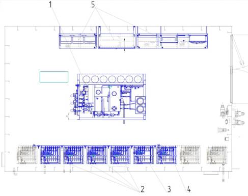
Схема размещения блоков станции управления СУФА77
1 – насосно-аккумуляторная установка;
2 – модули управления эксплуатационными скважинами;
3 – модуль управления газонагнетательной скважиной;
4 – модули управления водонагнетательными скважинами;
5 – электрооборудование и комплекс программно-технических средств.

Рис. 2. Схема размещения блочно-модульной установки СУФА 77

Рис.3. Насосно-аккумуляторная установка станции управления СУФА 77



а) б) в)
Рис. 4. Модули управления
а) эксплуатационной скважиной
б) водонагнетательной скважиной
в) управления газонагнетательной скважиной
В конечном итоге применение блочно-модульных конструкций для обустройства месторождений углеводородов позволит более оптимально разместить оборудование в замкнутом пространстве (помещении), сократить сроки и снизить затраты на монтаж и пусконаладочные работы на морской платформе. Суммарное ожидаемое снижение расходов составляет до 20%.
1.3. Современные требования к морским платформам
Освоение более глубоких акваторий шельфа потребовало создания более совершенных конструкций МП. Основные требования, учитываемые в современной проектной документации, приведены ниже:
– эффективность – конструкция должна наилучшим образом соответствовать своему функциональному назначению;
– надежность – вся конструкция в целом и ее элементы должны без повреждений противостоять нагрузкам на них и воздействиям в условиях эксплуатации, особенно штормам, ледовой нагрузке и сейсмическим воздействиям;
– долговечность – с безотказной работой в течение установленного срока ее эксплуатации;
– технологичность – при проектировании необходимо устанавливать соответствующие производственно-технические возможности изготовления, транспортировки, монтажа в море, предусматривать удобство в эксплуатации и возможность усиления конструкций;
– экономичность – затраты на проектирование, изготовление, монтаж и эксплуатацию должны быть минимальными;
– компактность и эргономичность – для возможности размещения оборудования в стесненном пространстве и удобства обслуживания;
– монтажепригодность – с полным или частичным демонтажем после завершения буровых и эксплуатационных работ.
1.4. Морские платформы
ОБЗОР ТИПОВ МОРСКИХ ПЛАТФОРМ
В морской добыче особенно актуальны наклонные и многозабойные скважины, когда вся территория промысла сосредоточена на платформе с ограниченной площадью 4–6 тыс. м2. Освоение морских месторождений нефти и газа, связанное со строительством дорогостоящих платформ, осуществляют исключительно методами кустового и направленного бурения. В кусте бурят до 40–60 скважин.
Профили каждой скважины должны быть тщательно продуманы и запроектированы. В процессе бурения необходим постоянный контроль за положением ствола скважины в пространстве. Ведь первые пробуренные скважины уже дают продукцию, и нельзя допустить повреждения их обсадных колонн при бурении последующих выработок. Длина стволов направленных скважин может достигать 9 км, и часто они имеют горизонтальное окончание. Сложность проводки скважин на больших морских глубинах состоит еще и в правильном выборе промывочной жидкости. Поскольку давление вышележащей толщи воды меньше, чем обычное горное давление на таких же глубинах, возможен гидроразрыв пластов.
В зависимости от глубины вод и назначения скважин морские основания делят на стационарные (насыпи, насыпные и намороженные острова, свайные и крупноблочные основания, платформы гравитационного и каркасного типов) и мобильные, к которым относят баржи, самоподъемные и полупогружные установки.
На стационарных основаниях можно бурить и эксплуатировать скважины в привычных условиях, применяя обычный комплекс надежного стандартного бурового и эксплуатационного оборудования. Применение самоподъемных и особенно полупогружных установок требует принципиально нового подхода к оборудованию устьев и обслуживанию добычных скважин.
Конструкции всех типов оснований и применяемое оборудование для их обслуживания постоянно совершенствуются, поэтому доступные морские глубины непрерывно увеличиваются.
Организация морского промысла требует предварительных гидрометеорологических наблюдений за температурным режимом, направлением ветров и течений, их интенсивностью, состоянием грунта на морском дне.
Большое внимание при работе на акваториях уделяют защите металла от коррозии. Интенсивная коррозия, в десятки раз большая, чем в атмосфере и под водой, происходит в зоне попеременного смачивания и высыхания. Металл в этой зоне покрывают специальным защитным слоем.
Сооружения для морской добычи углеводородов
Хотя бурение скважин на море в основном осуществляется с использованием такого же основного оборудования, как и на суше, однако проекты освоения морских нефтяных и газовых месторождений существенно отличаются от проектов разработки наземных месторождений. Главное различие состоит в наличии верхнего строения платформы и подводного основания, на котором монтируется буровая установка.
Значительная сложность и специфика проведения буровых работ в море обусловливается окружающей средой, высокой стоимостью и уникальностью технических средств, необходимостью проведения работ под водой, организацией строительства и эксплуатации объектов в море. Главная особенность шельфовых разработок – высокие затраты и стесненность пространства для размещения оборудования. Стоимость выполнения буровых работ на море примерно на порядок превышает стоимость бурения на суше, табл. 1.1.
Табл. 1.1. Технико-экономические показатели бурения на море и на суше

Общее количество глубоководных добычных платформ и систем, установленных по всему миру к 2009 году, показано на рис. 1.4. и в табл.1.2.

Рис.1.8. Типы используемых оффшорных систем морской добычи
Табл. 1.2. Количество морских добывающих систем во всем мире

Подводные системы в данном случае означают, что трубопроводы подключаются к существующим подводным объектам или объектам на поверхности моря. Преимуществами подводных систем являются более низкая стоимость привлекаемого капитала и сокращение производственного цикла на 70% (до получения первой продукции) по сравнению с созданием систем на земле.
Геологическими особенностями морского бурения являются:
– Относительно меньшая величина горного давления в породах за счет того, что часть пород более высокой плотности заменяет морская вода плотностью 1,03 г\см3. Это обстоятельство учитывают при ликвидации нефтепроявлений во избежание гидравлического разрыва пород.
– Меньшая, чем на суше, глубина залегания газоносных пластов.
Особенностью континентального шельфа является то, что 75% акваторий расположено в районах, которые продолжительное время покрыты льдами. Основными факторами, определяющими возможность строительства и эксплуатации нефтепромысловых объектов в море, являются:
– глубина моря,
– температурные условия,
– ветер,
– волнение и течения,
– ледовый покров,
– химический состав воды.
Строительство морских нефтепромысловых сооружений требует проведения инженерно-геологических изысканий морского дна. Достоверность и полнота данных определяют безопасность эксплуатации сооружения и экономичность проекта.
Для морской добычи требуется обычно 4 основных элемента, как показано на рис. 1.9.
– подводная система
– система гибких трубопроводов и стационарных трубопроводов, подъемные системы и стояки
– стационарные или плавучие платформы и устройства (системы, баржи, суда)
– эксплуатационное надповерхностное оборудование на платформе или системе

Рис. 1.9. Основные элементы морской добычи
Подводные системы
Подводный системы могут быть разбиты на три части следующим образом:
– скважинное оборудование (елка) и манифольд (коллектор),
– система управления – модуль подводного контроля и система остановки добычи
– система связи – перемычки и трубопроводы.

Рис. 1.10. Подводные системы морской добычи
Конструкции стационарных и плавучих платформ, рис. 1.8, а также суда для проведения поисковых работ и добычи нефти и газа при всех своих различиях имеют необходимый комплект оборудования и помещения для работы и жилья. В районах с мягким климатом и неглубокими водами для различных типов работ могут устанавливаться отдельные специализированные платформы. В районах с суровыми условиями и глубокими водами количество и размер платформ ограничивается до минимума. Так, в мелководных районах Юго-Восточной Азии отдельно установлены буровые, добывающие, жилые и факельные платформы, тогда как в Северном море каждая платформа охватывает все упомянутые функции.

Рис. 1.11. Варианты систем бурения и разработки глубоководных скважин
Объединенная добывающая, буровая и жилая платформа с возможным нефтехранилищем и подачей нефти на погрузочные шельфовые сооружения требует тщательного планирования размещения оборудования и точного анализа безопасности функционирования комплекса.
Работа на шельфе связана с необходимостью длительного пребывания персонала на колеблющейся платформе, осложнена суровыми природными условиями, что ведет к дополнительным эмоциональным нагрузкам. В некоторых районах мира в случае ураганов или тайфунов обслуживающий персонал эвакуируется с платформы. Любой разлив нефти на шельфе значительно труднее нейтрализовать, чем на суше.
Разработка морских месторождений, добыча, подготовка и транспорт углеводородов отличаются непрерывным производственным циклом и должны вестись круглый год, даже тогда, когда море покрыто льдом. В последние годы проводятся испытания комплексов оборудования подводной эксплуатации морских месторождений в ледовых условиях.
В процессе разработки морских месторождений требуется надежное сообщение между отдельными объектами. Как уже указывалось, доставка грузов на судах при волнении свыше 4 баллов затруднена. Малая глубина акватории в местах разработки (например, район Нефтяные камни в Азербайджане) вынуждает создавать эстакады как средство сообщения между объектами промыслов.
В последнее время при разработке малодебитных месторождений, а также на первом этапе освоения месторождений с большими извлекаемыми запасами используются плавучие установки. Как показал опыт, на Каспийском море плавучие буровые установки способны проходить в год до 15 тыс. м скважин со скоростью 1200-1600 м в месяц.
Для выполнения разведочного и эксплуатационного бурения при глубине моря до 100 м используют самоподъемные плавучие буровые установки (ПБУ). При большей глубине – полупогружные буровые установки и буровые суда. В настоящее время в эксплуатации находятся более 100 самоподъемных ПБУ и примерно по 50 полупогружных ПБУ и буровых судов. Для обеспечения этими установками нефтедобывающих компаний создана целая отрасль кораблестроения.
СТАЦИОНАРНЫЕ ПЛАТФОРМЫ
В настоящее время во всем мире насчитываются тысячи морских стационарных платформ (МСП), построенных на глубинах от 10 до 300 м, на шельфах всех пяти континентов нашей планеты, в основном на незамерзающих акваториях. В последние годы развернулось проектирование и опытное строительство МСП для замерзающих акваторий шельфа.
Наиболее эффективно использование МСП при кустовом методе освоения глубоководных месторождений нефти и газа. Стоимость МСП с оборудованием при освоении нефтегазовых месторождений может составить до 45-50% от полной стоимости обустройства месторождения, а срок службы таких сооружений достигает 20-50 лет и более.
МСП должны удовлетворять жестким требованиям надежности конструкций и безопасности персонала в течение всего периода эксплуатации с учетом наиболее суровых внешних воздействий. Их прочность и устойчивость в условиях незамерзающих акваторий определяется в основном воздействием штормовых волн на опорные части МСП, а в условиях замерзающих акваторий – нагрузками от ледовых полей.
Приведем некоторые цифры. За время существования СССР за 40 лет на нефтяных и газовых месторождениях Каспийского моря построено более 400 км сооружений эстакадного типа, около 1500 морских стационарных платформ, десятки самоподъемных и полупогружных плавучих буровых установок, проложены подводные нефтегазопроводы, сооружено много объектов обустройства нефтегазопромыслов.
Площадь нефтегазоносных полей в России составляет около 6 млн. кв. км. Кроме Каспийского моря перспективными по добыче нефти и газа являются Черное, Азовское, Балтийское и Аральское моря, а также моря Дальнего Востока. Активно разрабатываются месторождения шельфа Северного Ледовитого Океана.
Несмотря на большие материальные затраты, связанные с разработкой нефтегазовых месторождений, себестоимость нефти, добываемой из морских месторождений, почти в 2 раза ниже по сравнению со средней себестоимостью нефти, добываемой на суше Азербайджана.
Строительство и эксплуатация морских нефтегазопромысловых гидротехнических сооружений отличаются от строительства и эксплуатации морских и речных портовых и других видов гидротехнических сооружений. Места строительства морских нефтегазопромыслов связаны с наличием нефтегазовых залежей под дном моря, находящихся часто в сотнях км от берега в необжитых районах с крайне суровыми гидрометеорологическими условиями.
Классификация морских стационарных платформ
Морская стационарная платформа (МСП) – это гидротехническое сооружение, предназначенное для установки на ней бурового, нефтепромыслового и вспомогательного оборудования, обеспечивающего бурение скважин, добычу нефти и газа, их подготовку, а также оборудования и систем для производства других работ, связанных с разработкой морских нефтяных и газовых месторождений (оборудование для закачки воды в пласт, капитального ремонта скважин, средства автоматизации морского промысла, оборудование и средства автоматизации по транспорту нефти, средства связи с береговыми объектами и т. п.).
При разработке морских месторождений в основном два главных фактора определяют направление работ в области проектирования и строительства гидротехнических объектов в море. Такими факторами являются ограничения, накладываемые условиями окружающей среды, и высокая стоимость морских операций. Эти факторы в основном обусловливают все решения в проектировании и конструировании МСП, выборе оборудования, способов строительства и организации работ в данной акватории моря. Таким образом, МСП являются индивидуальными конструкциями, предназначенными для конкретного района работ.
В последние годы, в связи с широким разворотом работ по освоению морских нефтяных месторождений в различных районах Мирового океана, предложен и осуществлен ряд новых типов и конструкций МСП. Эти типы и конструкции МСП различают по следующим признакам: способу опирания и крепления к морскому дну; типу конструкции; по материалу и другим признакам.
По способу опирания и крепления к морскому дну МСП бывают: свайные, гравитационные, свайно-гравитационные, маятниковые и натяжные, а также плавающего типа,
– по типу конструкции: сквозные, сплошные и комбинированные,
– по материалу конструкции – металлические, железобетонные и комбинированные.
Сквозные конструкции выполняются решетчатыми. Элементы решетки занимают относительно небольшую площадь по сравнению с площадью граней пространственной фермы. Сплошные конструкции (например, бетонные) непроницаемы по всей площади внешнего контура сооружения.
На рис. 1.12 приведена классификация глубоководных МСП.

Рис.1.12. Классификация глубоководных МСП
На первом уровне классификации проведено деление МП на жесткие и упругие. Такое деление отражает конструкцию платформы (размеры, конфигурацию) и указывает период собственных колебаний, который у жестких составляет 4—6 с и упругих превышает 20 с, а в отдельных случаях достигает 138 с.
На втором уровне классификации жесткие конструкции классифицированы по способу обеспечения их устойчивости под воздействием внешних нагрузок на гравитационные, свайные и гравитационно-свайные. В первом случае сооружение не сдвигается относительно морского дна благодаря собственной массе и во втором – оно не смещается из-за крепления его сваями. Гравитационно-свайные сооружения не сдвигаются благодаря собственной массе и системе свай.
Третий уровень классификации жестких МП характеризует материал конструкции: бетон, сталь или бетон-сталь.
Упругие конструкции на втором уровне по способу крепления разделены на башни с оттяжками, плавучие башни и гибкие башни (рис.1.13.).


Рис. 1.13. Схемы МСП, применяемые на Каспийском море:
а – четырехблочная МСП; 1 – опорный блок; 2 -верхнее строение; 3— подвышенные конструкции; 4 – буровая вышка; 5 – причально-посадочное устройство; 6 – водоотделяющая колонна (обсадная); 7 – свайный фундамент;
б" – двухблочная МСП; 1— опорный блок; 2 – верхнее строение; 3 – причально-посадочное устройство; 4 – буровая вышка; 5 – водоотделяющая колонна; 6 – свайный фундамент;
в – моноблочная МП; 1 – опорный блок; 2 – верхнее строение, модули; 3 – буровая вышка; 4 – водоотделяющая колонна; 5 – свайный фундамент; 6 – причально-посадочное устройство.
Башни с оттяжками сохраняют свою устойчивость системой оттяжек, понтонов плавучести и противовесов. Плавучие башни подобны качающемуся маятнику, они возвращаются в состояние равновесия с помощью понтонов плавучести, расположенных в верхней части конструкции. Гибкие башни отклоняются от вертикали под действием волн, но при этом они, подобно сжатой пружине, стремятся возвратиться в состояние равновесия.
На последнем уровне классификации имеется 10 групп конструкций, каждая из которых обозначается начальными буквами слов английского языка, например RGS – риджит гревити стил (жесткая гравитационная стальная), RGC (жесткая гравитационная бетонная) и т. д.
Из проанализированных конструкций, установленных в настоящее время в мире, глубоководных МСП (более 40 установок, глубина моря более 300 м) 76% составляют жесткие, в том числе 45% стальные ферменные со свайным креплением, 26% гравитационные и 5% гравитационно-свайные. Среди упругих МП 13% составляют плавучие башни, 8% башни с оттяжками и 3% гибкие башни.
Увеличивается доля проектов стальных опор в зависимости от глубины моря. При глубинах моря 305— 365 м стальные опоры составляют 13%, а при глубинах от 365 до 520 м – 50%. Из выполненных проектов 79% имеют стальные опоры, 15% – бетонные и 6% – сталь-бетон.
Наибольшее число проектов (57%) разработано для вод глубиной 305—365 м, 30% —для глубин 365—460 м и 13% – на глубины больше 460 м.
В практике бурения скважин с плавучих буровых средств (БС, ППБУ) широко применяют комплексы подводного устьевого оборудования (ПУО), устанавливаемые на морском дне. Такое расположение позволяет наибольшие смещения плавсредства от центра скважины, при этом установленное на морском дне оборудование меньше подвержено механическим повреждениям.
Комплекс ПУО предназначен:
– для обеспечения при бурении скважины гибкой замкнутой технологической связи между перемещающимся от воздействия волн и течений БС или ППБУ и неподвижным подводным устьем, установленным на морском дне;
– для направления в скважину бурильного инструмента, обеспечения замкнутой циркуляции бурового раствора, управления скважиной при бурении и др.;
– для надежного закрытия бурящейся скважины в целях предупреждения возможного выброса из скважины при аварийных ситуациях или при отсоединении буровой установки в случае больших волнений моря.
Существует несколько конструкции ПУО, обеспечивающих бурение скважин на разных глубинах моря – от 50 до 1800 м и более.
Большая глубина установки ПУО предъявляет высокие требования к его свойствам:
– оборудование должно быть прочным, вибростойким, способным выдерживать большие внешние давления,
– быть герметичным и надежно управляемым на расстоянии.
Конструкция узлов комплекса должна обеспечивать точность стыковки и обеспечивать нормальную работу и управление ПУО.
Особое внимание уделяют расположению механизмов связи – надежным устройствам, установленным на БС или ППБУ, которые подвергаются действию волн, течения и ветра.
Недостатки размещения ПУО на дне моря – сложность управления, эксплуатации и ремонта.
Многолетний опыт бурения с плавучих буровых средств определил в основном две типовые конструкции скважин с подводным устьем.
В первой конструкции (для глубин скважин примерно 5000-6500 м) применяют фундаментальную колонну (направление) диаметром 762 мм, кондуктор диаметром 508 мм, первую промежуточную колонну диаметром 340 мм, вторую промежуточную колонну диаметром 178 мм. Диаметр эксплуатационной колонны обеспечивает спуск и установку двухколонных насосно-компрессорных труб (НКТ) для одновременно–раздельной эксплуатации пластов. Благодаря такому сочетанию диаметров с большими зазорами между колоннами обеспечивается надежное крепление скважин.
Вторую конструкцию преимущественно применяют в условиях бурения на меньшие глубины при более простой конструкции скважин. В этой конструкции используют фундаментальную колонну диаметром 762 мм, кондуктор диаметром 406 мм, промежуточную колонну диаметром 273 мм, эксплуатационную колонну диаметром 178 мм.
В практике буровых работ на море с БС и ППБУ применяют одно – или двухблочную конструкцию ПУО.
Некоторые одноблочные конструкции преимущественно используют на больших глубинах вод, в несложных двух – и трехколонных конструкциях скважин и на небольших глубинах бурения.
Двухблочные конструкции применяют преимущественно на небольших глубинах вод, в сложных четырех – и пятиколонных конструкциях скважин и на больших глубинах бурения.
Пример одноблочной конструкции показан на рис. 1.14.

Рис. 1.14. Одноблочный подводный устьевой комплекс.
1 – пульт бурильщика; 2 – пульт управления штуцерным манифольдом; 3 -аккумуляторная установка; 4 – гидравлическая силовая установка; 5 – дистанционный пульт управления; 6 – шланговые барабаны; 7 – гидравлический спайдер; 8 – верхнее соединение морского стояка; 9 – телескопический компенсатор; 10 – соединение; 11 – угловой компенсатор; 12 – нижний узел морского стояка; 13 – направляющие; 14 – подводные задвижки; 15 – цанговая муфта; 16 – опорная плита; 17- акустический датчик; 18 – плашечные превенторы; 19 – штуцерный манифольд; 20 – морской стояк.





