Тайна смерти Рудольфа Гесса: Дневник надзирателя Шпандау

- -
- 100%
- +
У заключенных изъяли личные вещи и аккуратно занесли их в инвентарный список. В частности, у Функа отобрали 1575 рейхсмарок, запонки и золотой зажим для воротника. На Гесса записали китель капитана Люфтваффе, летный комбинезон, шлем и летные ботинки – вещи, в которых он улетел в Англию в 1941 году.
Фаулер может подтвердить, что «номер семь» всегда был для надзирателей заключенным-проблемой. Сначала Гесс отказывался работать в саду. Он заявил надзирателям:
– Что бы сказали обо мне люди на воле, если бы увидели меня в таком качестве? Они могут увидеть меня из соседнего высокого здания и тогда точно подумают, что я сошел с ума. Нет, я не собираюсь поступать подобным образом.
Потом «заключенный № 7» отказывался вставать и выходить на работу. На основании директорской проверки его признали виновным в неповиновении и наказали 15-дневным арестом с содержанием в карцере. Там он не имел права ни писать, ни читать, а мог только выходить на прогулку на один час.
Например, в декабре 1950 года в книгу старшего дежурного были записаны «особые происшествия»:
3 декабря
6.45 Завтрак выдан всем, за исключением Функа и Гесса. Гесс отказывается вставать, умываться и завтракать. Заявляет, что он болен. Дважды был отдан приказ встать, но он игнорировал его самым неприличным образом.
8 декабря
Американский надзиратель Оуэнс и британский надзиратель Рид обыскали камеры. В камере заключенного № 7 были найдены два куска белого хлеба и порция масла. На заседании директоров было решено прикрепить на дверь камеры распоряжение, позволяющее надзирателям, если они считают необходимым и оправданным, силой поднимать заключенного с постели.
18 декабря
Заключенный № 7 утверждает, что он болен и не может помогать при уборке помещения. Матрац убран с кровати, так как посчитали, что это единственный путь вынудить заключенного подняться. На следующее утро № 7 снова жалуется на боли и заявляет, что он не может встать. Его снова вытаскивают из постели. Немного посопротивлявшись, он выходит из камеры и что-то бурчит себе под нос. Надзирателю Бюллену показалось, что он услышал слово «свиньи». Наказание – лишение на 15 дней бумаги и книг, изъятие постели на время работы.
Управление оккупированной Германией, 25 января
С 16.00 дежурю на воротах. Двое прохожих остановились с внешней стороны шлагбаума, что-то обсуждают, фотографируют МТШ. Я наблюдаю за ними в окно и на экране видеомонитора. Здание тюрьмы привлекает молодое поколение берлинцев. Им интересно, что за этими красными стенами еще живет дух последней мировой войны. Пожилые берлинцы, пережившие то страшное время, ускоряют шаг, проходя мимо МТШ. Они хорошо понимают, кто истинные хозяева в Германии и в их городе.
После разгрома фашизма странами-союзниками и завершения Второй мировой войны верховная власть в оккупированной Германии осуществлялась главнокомандующими вооруженных сил четырех держав-победительниц, каждым в своей зоне оккупации. Органом верховной власти являлся Контрольный совет над Германией. Соответственно в Контрольный совет входили маршал Г. К. Жуков (СССР), генерал Д. Эйзенхауэр (США), фельдмаршал Б. Монтгомери (Великобритания) и генерал Ж.-М. де Латр де Тассиньи (Франция).
Контрольный совет располагался в здании Прусского апелляционного суда в берлинском районе Шёнеберг. Основной функцией Контрольного совета была выработка планов и достижение согласованных решений по главным военным, политическим, экономическим и другим вопросам, общим для всей Германии, которые должны приниматься единогласно. Каждая из сторон сохраняла полную ответственность за управление своей зоной оккупации. Учредительное заседание Контрольного совета над Германией состоялось 30 июля 1945 года одновременно с проходившей Потсдамской конференцией.
20 марта 1948 года Советский Союз бойкотировал заседание Контрольного совета в знак протеста против проведения Лондонского совещания шести держав, и больше Контрольный совет на заседания не собирался. Однако формально он существует, и здание Контрольного совета несколько десятилетий поддерживается в рабочем состоянии.
В соответствии с договоренностями между странами Антигитлеровской коалиции, весь Берлин, как и Германия, был поделен на четыре оккупационные сектора. Совместное управление союзниками районом «Большой Берлин» осуществлялось Межсоюзнической комендатурой, находящейся в подчинении Контрольного совета. После выхода СССР из Контрольного совета над Германией в Межсоюзнической комендатуре также остались только три страны.
Советский сектор оккупации составили районы: Панков, Вайсензее, Пренцлауэр-Берг, Митте, Фридрихсхайн, Лихтенберг, Кёпеник и Трептов.
В свой сектор оккупации в Берлине американские войска прибыли спустя два месяца после окончания войны, заняв шесть районов: Кройцберг, Нойкёльн, Темпельхов, Штеглиц, Целлендорф, Шёнеберг. В настоящее время оккупационные власти США в Западном Берлине официально именуются Миссией США в Берлине. Глава миссии – посол США в ФРГ, заместитель главы миссии – комендант американского сектора и командующий войсками США в Западном Берлине, в отсутствии посла он осуществляет общее руководство Военной администрацией США в Западном Берлине.

Условная схема деления Берлина на сектора оккупации
Английские войска прибыли в Берлин в июле 1945 года, заняв районы Тиргартен, Шарлотенбург, Вильмерсдорф и Шпандау. Официально оккупационные власти Великобритании в Западном Берлине именуются администрацией. Глава администрации – посол Великобритании в ФРГ, заместитель – комендант британского сектора, в отсутствие посла он выполняет общее руководство английской военной администрацией.
Французские войска прибыли в Берлин 12 августа 1945 года, заняв районы Веддинг и Райникендорф. Высший французский орган в Западном Берлине – французская военная администрация. Глава администрации – посол Франции в ФРГ, заместитель – комендант французского сектора и командующий французскими войсками в Западном Берлине.

Коменданты секторов Западного Берлина (слева на право): француз Поль Каварро, британец Патрик Г. Брукин, американец Джон Х. Митчел. 1986 г.
C 1952 года жителям западных секторов Берлина был запрещен вход в советскую зону оккупации Германии, где в 1949 году была провозглашена Германская Демократическая Республика. Но передвижение внутри оккупационных секторов Большого Берлина оставалось беспрепятственным вплоть до возведения ГДР 13 августа 1961 года Берлинской стены, разделившей город на Западный и Восточный Берлин.
Потсдам, 26 января
Советские надзиратели живут на территории ГДР в городе Потсдам, в районе Берлинерфорштадт. Это тихий окраинный район Потсдама, практически не задетый военной разрухой. Поэтому на соседней с нами улице в старинных особняках располагаются британская и французская военные миссии связи, аккредитованные при главнокомандующем Группой советских войск в Германии. Недалеко от нашего дома находится прекрасное озеро, а за ним большой парк, в котором расположен дворец Цецилиенхоф. Именно в нем с 17 июля по 2 августа 1945 года проходила знаменитая Потсдамская конференция, определившая шаги по послевоенному устройству Европы. Это была третья и последняя встреча «большой тройки» Антигитлеровской коалиции.
В пяти минутах ходьбы от нашего жилого дома расположено и наше служебное помещение – здание советского отделения Межсоюзной тюрьмы Шпандау. Совсем недалеко протекает река Хафель, а над ней мост Глиникебрюкке, соединяющий Потсдам и Западный Берлин. На мосту дежурят пограничники ГДР. Мост закрыт для массового движения. Только автомобили дипломатов и военных миссий связи изредка пересекают здесь границу. Но мост имеет свою историю. Кто не смотрел знаменитый советский фильм «Мертвый сезон»? Впечатляет мужество разведчиков, их готовность к самопожертвованию для достижения цели, эффектно смотрится завершающая сцена обмена советского и американского разведчиков. Все знают, что в основу фильма положена судьба советского разведчика Рудольфа Абеля. Гораздо меньше людей знают, что обменяли Абеля на американского летчика Фрэнсиса Пауэрса, пилота самолета-разведчика «У-2», сбитого над Свердловском. Еще меньше людей посвящены в то, что обмен состоялся в феврале 1962 года на этом самом мосту Глиникебрюкке. Ну и только непосредственные участники того исторического обмена знают, что последнюю ночь перед обменом Пауэрс провел в здании нашего отдела. Эту легенду сотрудники отдела передают из поколения в поколение. Так что теперь ее знаю и я. Рассказали мне и более свежую историю. Полгода назад, в июне 1985 года, на мосту состоялся очередной обмен арестованных на Западе разведчиков социалистических стран на западных разведчиков, арестованных в социалистическом блоке. Но в этом обмене отдел не принимал никакого участия.
Территория МТШ, 28 января
С 16.00 дежурю на воротах. Британский караул готовится к сдаче смены, закончилось суточное дежурство. Я уже впустил новый состав караула на территорию тюрьмы. Разводящие повели часовых по постам, сержанты проверяют порядок в караульном помещении. Караульное помещение расположено рядом с комнатой дежурного надзирателя на воротах. Здесь же находится постоянный пост часового. Через полчаса смена караула завершена. Сменившийся караул выстраивается во внутреннем дворе в колонну по три, я открываю ворота, офицер дает команду, караул строевым шагом выходит из тюрьмы и направляется в казарму.

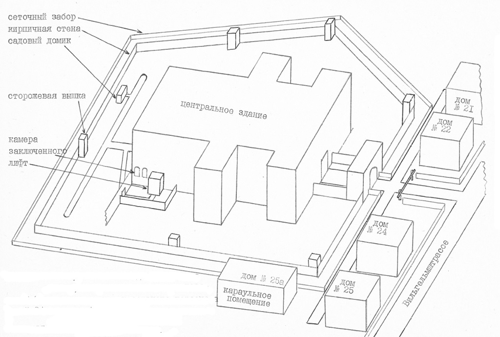
Общая схема территории МТШ
Территория тюрьмы обнесена каменной стеной высотой около 6 метров и забором из металлической сетки. Между ними сохранился фундамент электрического забора. Электрический забор с напряжением тока до 4000 вольт между двумя рядами колючей проволоки раньше также обеспечивал неприступность тюрьмы. В настоящее время остался лишь сеточный забор. По периметру каменной стены установлено шесть сторожевых вышек, на которых постоянно находятся часовые. Тюрьма имеет только одни входные ворота со стороны улицы Вильгельмштрассе. На территории тюрьмы находятся разрушенные здания бывших складских помещений, банно-прачечного хозяйства, лазарета, мастерских и других подсобных помещений, а также угольный склад, сад, двор для прогулок. Большая часть тюрьмы в настоящее время не используется.
Кроме территории, окруженной стеной, к тюрьме также относятся несколько зданий, расположенных вдоль улицы Вильгельмштрассе. Эти здания обнесены сеточным забором, проход к ним контролируется дежурным надзирателем на главных воротах и закрыт для посторонних лиц шлагбаумом. В доме № 21 находится столовая для персонала МТШ. Дом № 22 используется про проживания некоторых сотрудников из несоюзного персонала тюрьмы и их семей. В частности, в этом доме вместе со своей семьей живет санитар Мелаоухи. Дом № 24 используется в качестве складского помещения. В доме № 25 расположены квартиры для отдыха надзирателей СССР и США. В квартирах есть все для комфортного проживания 10–12 человек, они содержатся в чистоте и порядке и всегда готовы к использованию. Поддерживает порядок в квартирах уборщица немка Клуст. В квартирах отдыхали советские и американские надзиратели в перерывах между дежурствами в 50–60-х годах, когда приезжали на дежурство в МТШ на целую неделю. Однако с конца 60-х годов квартиры используются очень редко, но в любой момент готовы встретить постояльцев. Дом 25а служит казармой для проживания американского, английского и французского караулов в месяцы их охраны тюрьмы. В казарме располагаются военнослужащие, не задействованные в суточном карауле. Военнослужащие располагаются там постоянно в течение своего месяца. Советский караул этой казармой не пользуется и каждые сутки приезжает на смену из Восточного Берлина.
В 20.00 мне на смену приходит американский надзиратель Джордан, и я продолжаю дежурство в блоке. «Номер семь» что-то пишет в своей камере сидя на кровати. Я располагаюсь в кресле дежурного, открываю газету. Ближе к девяти часам вечера заключенный выходит из камеры и идет в телевизионную комнату. В 21.00 по многим каналам начнется выпуск новостей, «номер семь» старается быть в курсе всех мировых событий. Заключенный располагается напротив телевизора, я рядом.
– Американский космический челнок «Челленджер» взорвался на 73-й секунде полета, на высоте чуть более четырнадцати километров, – объявляет диктор.
– О, Mein Gott!5 – восклицает «номер семь».
Один и тот же сюжет показывают непрерывно: стартовая площадка, готовый к запуску корабль, на смотровой площадке приглашенные на церемонию запуска счастливые родственники и друзья астронавтов, старт ракеты, телевизионные камеры большого радиуса действия следят за полетом челнока, дымок из топливного бака, огненный оранжево-белый шар, огромное облако в виде двуглавого дракона. Камера периодически показывает охваченных ужасом гостей. У них на глазах только что погибли семеро астронавтов: их отцы, мужья, матери, жены.
Лицо заключенного напряжено, руки сжимают подлокотники кресла, глаза неотрывно смотрят на экран. Видно, что он взволнован. Пытаемся найти какую-либо информацию о старте челнока на других каналах. Но все каналы только повторяют один и тот же сюжет. «Номер семь» встает и выходит из телевизионной комнаты. В этот вечер он рано пошел спать.
Устав МТШ, 31 января
Заступаю в ночную смену на ворота. Британский часовой на посту отдает мне честь в соответствии с воинским уставом. А вся жизнь в тюрьме и вокруг нее также определена уставом. Документ с названием «Тюремный устав союзной тюрьмы в Шпандау» был утвержден Контрольным советом над Германией 10 июня 1947 года. Уставом определялось, что Верховная исполнительная власть над тюрьмой в Шпандау принадлежит Союзной комендатуре города Берлин. Высшей исполнительной властью является Правовой комитет Союзной комендатуры. Исполнительная власть состоит из четырех офицеров, которые образуют Дирекцию тюрьмы. В связи с тем, что в 1948 году советские представители вышли из состава союзной комендатуры, Верховная исполнительная власть и Высшая исполнительная власть, фактически, перестали существовать как единые четырехсторонние органы. Из всех органов власти МТШ единой осталась лишь Исполнительная власть – Дирекция тюрьмы. Представителями Верховной исполнительной власти американской, британской и французской сторон стали коменданты соответствующих секторов Западного Берлина. Функция Верховной исполнительной власти с советской стороны осуществляется начальником штаба Группы советских войск в Германии через начальника Отдела внешних сношений. Соответствующие изменения были внесены в Устав МТШ в 1950–1960-х годах.
Значительные изменения в первоначальной редакции Устава в части внутренней жизни тюрьмы были сделаны в апреле 1954 года. В случае если состояние здоровья заключенного потребует сложного лечения или серьезной хирургической операции, которые не могут быть удовлетворительно проведены в тюрьме, больного разрешили поместить на определенный срок, согласованный четырьмя директорами тюрьмы, в ближайший от тюрьмы госпиталь, находящийся в распоряжении одной из оккупирующих Германию держав. При этом директора продолжают нести ответственность за охрану заключенного. Одновременно были сделаны некоторые послабления в режиме содержания заключенных. В частности, свет в камере по просьбе заключенного может быть выключен в любое время после 18 часов 45 минут, заключенным разрешили разговаривать между собой во время работы и прогулок, несколько смягчились процедуры переписки и свиданий, в комнате свиданий сняли решетки, которые мешали заключенному и посетителю видеть друг друга. Именно тогда было принято решение пополнить тюремную библиотеку четырьмя ежедневными газетами, по одной по выбору каждого из четырех директоров.
Следующие изменения в тюремном режиме конкретно «заключенного № 7» были приняты в марте 1970 года, после возвращения его с лечения в британском военном госпитале. При этом подчеркивалось, что все изменения в тюремный режим вносятся в связи с состоянием здоровья заключенного. Он был переведен в сдвоенную камеру, в которой разрешили установить медицинскую кровать, предоставленную британским военным госпиталем. Также было принято решение не закрывать камеру заключенного на ключ. Время подъема заключенного изменено с 6.00 часов на 7.00 часов, продолжительность завтрака установлена с 7.45 до 8.30, разрешена дополнительная двухчасовая прогулка. Заключенный стал получать диетическое питание и был освобожден от физической работы. Уборка камеры поручалась теперь санитару.
1 октября 1982 года полномочные представители четырех союзных держав подписали протокол, определяющий действия, которые будут предприняты в отношении Межсоюзной тюрьмы Шпандау в случае смерти заключенного. Предусмотрено, что тело умершего после обычных процедур будет направлено самолетом в Баварию и передано там его семье для захоронения в узком семейном кругу. Тюрьма Шпандау после выполнения ею функций Межсоюзной тюрьмы будет снесена. Архивы тюрьмы будут отсняты на пленку и переданы в копии представителям всех четырех сторон. Подлинники подлежат уничтожению по договоренности всех четырех сторон.
В 4.00 француз Пэнсар сменил меня на воротах, я иду в блок. «Номер семь» спокойно спит. Я располагаюсь в кресле дежурного в коридоре напротив камеры, открываю газету.
Заключенный проснулся около семи часов утра, долго кряхтит и потягивается в постели, встает и делает легкую гимнастику. Затем выходит в коридор, включает в своей камере свет, идет в туалет. По дороге традиционно останавливается, изучая, кто находится на дежурстве. Вскоре появляется санитар Мелаоухи, начинается утренний медицинский осмотр. Затем санитар с «заключенным № 7» идут в ванную комнату. Стоя в коридоре через раскрытую дверь я вижу, как санитар усаживает заключенного в кресло, повязывает салфетку и начинает медленно брить. Бритва на аккумуляторах, поэтому провод при бритье не мешает. Про себя отмечаю, что в Советском Союзе таких бритв я еще не встречал.
Глава 2. Заместитель фюрера (Февраль 1986 года)
Западный Берлин, 1 февраля
С 16.00 заступаю «чифом». А пока еду из Потсдама в Западный Берлин на дежурство. В отделении у нас три машины. На черной «Волге» обычно ездит советский директор МТШ. Но иногда она возит и надзирателей на смену. Красные «Жигули» шестой модели, как правило, используются для хозяйственных нужд, но периодически совершают поездки и в Шпандау. Чаще же всего смену надзирателей обеспечивает зеленый микроавтобус РАФ или просто «Рафик». За исключением дня-паузы, три раза в сутки один из автомобилей везет из Потсдама в МТШ очередного дежурного надзирателя и возвращается с надзирателем, закончившим смену. Водителями автомобилей являются солдаты срочной службы, прикомандированные к отделению МТШ из Отдела внешних сношений штаба Группы советских войск в Германии.
Несмотря на то, что в Потсдаме мы располагаемся рядом с границей с Западным Берлином, проехать из одного города в другой просто так нельзя. 13 августа 1961 года руководством ГДР было принято решение о закрытии границы с Западным Берлином, и вся западная часть Берлина была окружен стеной. Теперь это инженерно-оборудованная и укрепленная государственная граница Германской Демократической Республики с Западным Берлином. Для проезда через стену и въезда в Западный Берлин существуют только несколько специально оборудованных контрольно-пропускных пунктов. Через один из таких пунктов – КПП Штаакен, мы обычно въезжаем в Западный Берлин. Дорога до КПП занимает около получаса.
Наш «Рафик» приближается к КПП Штаакен. Пограничники ГДР знают наши машины и открывают «зеленую линию». При нашем приближении шлагбаум заранее поднимается, и мы без остановок въезжаем в пограничную зону. Проезжаем около 50 метров и, через предупредительно открытый очередной шлагбаум, попадаем на нейтральную полосу. Еще около 50 метров, и нас встречает пост западноберлинской полиции. Как и в ГДР, шлагбаум предупредительно открывается. Мы в британском секторе Западного Берлина. До МТШ остается минут 10–15 езды.
Построенная в 1961 году стена физически разделила Берлин на две части. Многие жители Берлина в один день лишились работы или квартиры, многие семьи оказались разделены. Вместе с возведением стены были отрезаны основные городские коммуникации: водопроводы, канализация, газопроводы, электросети. Берлинский метрополитен был разделен на две независимо работающие транспортные системы. Некоторые, бывшие ранее едиными линии, оказались разорваны. Две линии западноберлинского метро идут из западной части города в западную часть через восточную часть. Поэтому на этих двух линиях в общей сложности 15 станций, находящихся в восточном секторе, закрыты. Это – так называемые «станции-призраки». Аналогично устроены линии метро, находящиеся в основном в ГДР и частично проходящие под землей через Западный Берлин.
На смену в МТШ принято приходить минут на 10–15 раньше срока. С учетом дороги советские надзиратели должны своевременно выезжать из Потсдама. Французские надзиратели также пользуются своим служебным транспортом для поездок на смену в МТШ. Американские и британские надзиратели приезжают в МТШ на личных автомобилях.
Мы подъезжаем к МТШ. На входе в тюрьму французский часовой отдает честь. Сегодня в полдень французский караул пришел на смену английскому, и французский директор стал председательствовать на заседаниях директоров. Все идет по заранее расписанному плану.
Тюремный сад, 5 февраля
С 8.00 дежурю на воротах. Идет обычная дневная суета. Пришли на работу секретари, городской почтальон принес почту, французский офицер проверил караул. Около 10 часов в дверь позвонил незнакомый мужчина. Я открыл смотровое окно в воротах, незнакомец представился:
– Пастор Габель, – и протянул оформленный по всем правилам пропуск в МТШ. Проверив пропуск, я открыл дверь, пастор направился в главное здание тюрьмы. Религиозное обслуживание заключенных предусмотрено Уставом МТШ. Духовное лицо назначается Дирекцией тюрьмы. С 1977 года тюремным пастором является Шарль Габель – капитан французской армии, военный духовник французского гарнизона в Западном Берлине. Чаще всего пастор приходит к заключенному по средам в первой половине дня. За прошедший месяц работы у меня не было дежурства в среду в этот период времени, поэтому с пастором мы встретились впервые. Часа через полтора пастор покинул тюрьму.
После обеда у меня дежурство в блоке. Заключенный традиционно дремлет после приема пищи, я беру предназначенные для него газеты и располагаюсь в своем кресле. В газете «Франкфуртер Альгемайне» между зияющих окон от вырезанной цензорами запрещенной для заключенного информации нахожу интересную статью: Великобритания и Франция объявили о своих планах построить тоннель под проливом Ла-Манш. Из четырех предложенных вариантов выбран один. Осталось окончательно урегулировать вопросы, связанные с финансированием строительства. В тоннеле планируется проложить две железнодорожных колеи и открыть движение высокоскоростных поездов. Таким образом, в Лондон можно будет безопасно приехать из любой точки Европы на поезде. Интересно, сколько времени займет такая поездка из Германии? В 1941 году перелет Гесса из Германии в Англию на двухмоторном истребителе-бомбардировщике Ме.110 занял около шести часов. Этот полет расколол всю жизнь «заместителя фюрера» на две части. Какие мысли и воспоминания придут теперь в голову «заключенному № 7», когда он прочитает эту статью?
Заключенный проснулся, сходил в туалет и направился в гардеробную комнату одеваться. Предстоит прогулка. Санитар Мелаоухи убрал оставшуюся после обеда посуду, поправил кровать, помог «номеру семь» одеться. Вдвоем с заключенным мы спускаемся на лифте вниз и выходим в сад.
Тюремный сад – большой засаженный деревьями участок земли позади основного здания тюрьмы. До прибытия семерых заключенных здесь росли сорняки и одичавший кустарник. Эти джунгли много лет никто не обрабатывал. Заключенным было поручено привести это место в порядок. Главным планировщиком и создателем тюремного сада был «заключенный № 5». Альберт Шпеер, архитектор, который должен был придать новый облик Берлину, для своей кипучей деятельности имел в саду всего несколько досок и кучу кирпича. Руки, которые в былые времена наметили для Германии проекты нового монументального архитектурного стиля, соорудили две простые скамьи под деревьями. В саду Шпеер полностью показал себя. Под его руководством заключенные проложили дорожки и сделали маленькие грядки, за которыми каждый лично ухаживал. Между собой семеро заключенных стали именовать это место «сад Шпеера» или «рай Шпеера». На кухню из сада доставлялись свежие бобы, капуста, сельдерей, свекла, картофель, лук, салат, тыква, петрушка и даже клубника. Но согласно порядку, существующему в тюрьме, семерым заключенным запрещалось есть клубнику, которую они разводили. Это был уже «комфорт».





