The Second Sister

- -
- 100%
- +

He was the last person she’d expected to see here.
“Don’t tell me you’re in trouble again?” she blurted out.
The corners of his mouth rose slightly. “I’m on the other side of the desk now. You did tell me to make something of myself, remember?”
Heat flamed in her cheeks. “You’re a lawyer?” The word didn’t make sense. Though he dressed like a lawyer, the bad boy of the county still lingered in his relaxed, confident pose. His eyes pinned her where she sat.
“You and I will need to work closely together. Will you be all right with that?”
Her heartbeat stuttered again. She lifted her chin and met his gaze. “Of course. Will you?”
Dear Harlequin Intrigue Reader,
Take a very well-deserved break from Thanksgiving preparations and rejuvenate yourself with Harlequin Intrigue’s tempting offerings this month!
To start off the festivities, Harper Allen brings you Covert Cowboy—the next riveting installment of COLORADO CONFIDENTIAL. Watch the sparks fly when a Native American secret agent teams up with the headstrong mother of his unborn child to catch a slippery criminal. Looking to live on the edge? Then enter the dark and somber HEARTSKEEP estate—with caution!—when Dani Sinclair brings you The Second Sister—the next book in her gothic trilogy.
The thrills don’t stop there! His Mysterious Ways pairs a ruthless mercenary with a secretive seductress as they ward off evil forces. Don’t miss this new series in Amanda Stevens’s extraordinary QUANTUM MEN books. Join Mallory Kane for an action-packed story about a heroine who must turn to a tough-hearted FBI operative when she’s targeted by a stalker in Bodyguard/Husband.
A homecoming unveils a deadly conspiracy in Unmarked Man by Darlene Scalera—the latest offering in our new theme promotion BACHELORS AT LARGE. And finally this month, ’tis the season for some spine-tingling suspense in The Christmas Target by Charlotte Douglas when a sexy cowboy cop must ride to the rescue as a twisted Santa sets his sights on a beautiful businesswoman.
So gather your loved ones all around and warm up by the fire with some steamy romantic suspense!
Enjoy,
Denise O’Sullivan
Senior Editor
Harlequin Intrigue
The Second Sister
Dani Sinclair

MILLS & BOON
Before you start reading, why not sign up?
Thank you for downloading this Mills & Boon book. If you want to hear about exclusive discounts, special offers and competitions, sign up to our email newsletter today!
SIGN ME UP!
Or simply visit
signup.millsandboon.co.uk
Mills & Boon emails are completely free to receive and you can unsubscribe at any time via the link in any email we send you.
For Natashya Wilson, who challenges me to do the impossible,
and is nearly always right, darn it.
Many thanks.
For Roger, who always listens. I love you.
And for Chip and Dan, who ignore the insanity
and get me through the graphics. You guys are terrific.
ABOUT THE AUTHOR
An avid reader, Dani Sinclair didn’t discover romance novels until her mother lent her one when she had come for a visit. Dani’s been hooked on the genre ever since. But she didn’t take up writing seriously until her two sons were grown. Since the premiere of Mystery Baby for Harlequin Intrigue in 1996, Dani has kept her computer busy. Her third novel, Better Watch Out, was a RITA® Award finalist in 1998. Dani lives outside Washington, D.C., a place she’s found to be a great source for both intrigue and humor!
You can write to her in care of the Harlequin Reader Service.

CAST OF CHARACTERS
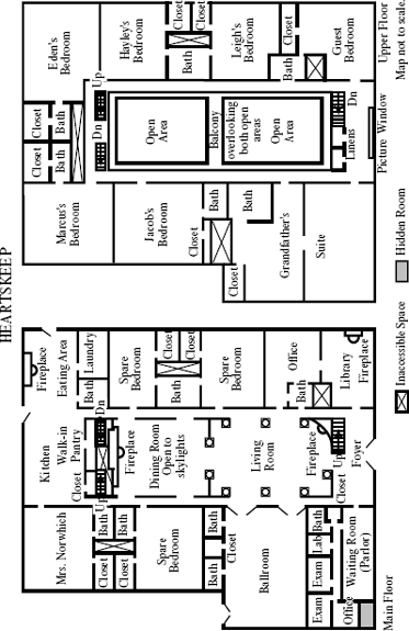
Dennison Hart—He made sure Heartskeep stayed in the family. He never anticipated that no one would want the place.
Amy Hart Thomas—She disappeared seven years ago without a trace.
Hayley Hart Thomas—As Leigh’s twin and the oldest child, Heartskeep should have belonged to her.
Leigh Hart Thomas—She thought she’d put the past behind her, until she returned to Heartskeep and discovered the past refused to stay buried.
Marcus Thomas—His evil reaches beyond the grave.
Eden Voxx Thomas—Marcus’s widow knows more than she’ll admit.
Jacob Voxx—Does being Eden’s son mean he’s out to cause trouble?
Gavin Jarret—The former bad boy of the county is now the estate’s lawyer.
Bram Myers—His heart belongs to Hayley, and keeping her from harm is his goal.
Nolan Ducort III—He has a secret to keep and a score to settle.
Martin Pepperton—This member of the prominent Pepperton family was stomped to death by one of his own horses—after he was shot.
Keith Earlwood—He always liked hanging with the rich and famous.
George and Emily Walken—Gavin’s foster parents have been friends and neighbors of Heartskeep for years.
Dear Harlequin Intrigue Reader,
Welcome back to Heartskeep. The somber estate has only just begun to yield its many secrets. The doorway to the past is open now, and anything can happen.
Seven years ago, tough guy Gavin Jarret cultivated his dark reputation to keep people at a distance. He never backed down, and made it a point to never let anyone close enough to matter. Until a sultry, summer night when he offered a tempting seductress a ride on the back of his motorcycle, and changed both their lives forever.
Leigh Thomas is the quiet twin, forever in her sister’s shadow. Her one attempt to break that mold ended in disaster—and a night she could never forget. She thought she’d put the past behind her, but fate and Heartskeep have other plans.
Happy reading!

Contents
Chapter One
Chapter Two
Chapter Three
Chapter Four
Chapter Five
Chapter Six
Chapter Seven
Chapter Eight
Chapter Nine
Chapter Ten
Chapter Eleven
Chapter Twelve
Chapter Thirteen
Chapter One
Seven years ago
Leigh Thomas gulped the soda her date handed her, looking for a way out. She didn’t know a soul in the noisy crowd and the live rock band prevented conversation even if she’d found someone interesting to talk with. College age and older, everyone seemed to be drinking, openly using drugs and making out. The beer she’d managed to force down was threatening to make an ignoble return and suddenly, her flashy new image seemed downright stupid.
She might look like part of this crowd tonight, but despite the fact that she had raided her identical twin sister’s more daring wardrobe for this outfit, inside Leigh beat the heart of a fairly naive seventeen-year-old. She should never have gone out with Nolan Ducort III.
A party at the elite Pepperton estate had sounded so enticing. The perfect way to change her mousy image. Of course, if Leigh’s mother had still been alive, she would have warned Leigh that Martin Pepperton’s family was out of the country, and that Nolan, Martin and their buddy, Keith Earlwood, all had questionable reputations. But Amy Thomas wasn’t there to warn her, and Leigh hadn’t listened to her sister.
Their mother’s disappearance a few months ago, coming only months after the unexpected death of Leigh’s beloved grandfather, was still tearing Leigh apart. Amy Hart Thomas hadn’t voluntarily vanished right before Leigh’s high school graduation. Their mother was dead. They knew it, they simply couldn’t prove it.
The police tended to agree, but they believed Amy had been the victim of a robbery gone bad. She’d withdrawn a surprising amount of cash for a trip to New York City when she generally used credit cards for everything. Officers were quick to point out that Amy’s fondness for wearing expensive jewelry to complement her designer clothing was something any thief would notice right away. Even her expensive luxury car marked her as a potential target.
Only, Amy Thomas was no fool. She’d grown up wealthy. She knew how to protect herself. Besides, a robbery gone bad didn’t explain why neither her car nor her body had been found. And contrary to the local police chief’s suggestion, there was absolutely no way their mother had run off with a secret lover. The idea was ludicrous.
Leigh took another sip of the soda. Nolan grinned at her and ran his hand possessively down her arm. Leigh shivered. His touch repulsed her. Definitely, going out with Nolan had been a bad mistake. She’d have been better off at home in her room with her customary book in hand, reining in her all-too-vivid imagination. The family estate of Heartskeep was large enough that she would have had no trouble avoiding her father tonight. She’d had years of practice, after all.
But she’d been so tired of thinking and wondering—so tired of stifling sobs for the mother she missed so much. Going out, being with new people, had seemed like such a good idea at the time.
Nolan was wealthy and model handsome. His sporty new convertible was the talk of everyone she knew. Even Leigh’s sister, Hayley, had been green with envy when he’d singled Leigh out after they were introduced. Being an identical twin, Leigh was used to guys flocking around her out of curiosity, but it was Hayley they were generally drawn to. Hayley knew how to flirt and tease. Outgoing, friendly and smart, her sister wasn’t intimidated by anything. Everyone always said Leigh was the quiet twin, perfectly content to let her “older” sister take the lead in most things. It was a real coup to have someone more interested in her than in Hayley. Her sister hadn’t been able to conceal her surprise or her disappointment. Hayley had really liked Nolan’s car. She had been quick to point out that Nolan was older and more worldly than other guys Leigh had dated. Which, of course, had made going with him tonight a given.
Now, Leigh sincerely wished she had listened to her sister and her own instincts. She was starting to feel dizzy and strange. Must be the effects of that beer she’d forced herself to drink. All she wanted now was to get out of this house and away from this noisy party. She didn’t like the way Nolan and his two friends kept looking at her.
Hayley would have known exactly how to handle the situation. No—Hayley would never have let herself be placed in this situation. Leigh was out of her depth and sinking fast.
When a boisterous group of people approached, Leigh seized the opportunity to slip away unnoticed. Outside, the humid night air didn’t help the muzzy sensation buzzing inside her head. She felt strange, as if she was melting from the inside out. From one beer? That and the flat-tasting soda were the only things she’d had. Maybe if she’d eaten something today she wouldn’t feel so strange. Reaching out a hand for a nearby tree, she tried to shake off the weird sensations.
“You okay?”
A dark shape detached itself from the side of a parked pickup truck nearby. The spark from a cigarette was ground beneath a large booted foot.
Her heart stopped, then jumped to vigorous life as her gaze traveled up the tight jeans, across the flat abdomen clearly visible beneath the open shirt, to reach his face, carved from the shadows. She knew his eyes were deep gray, with a penetrating stare that unnerved some people. Leigh had always found it incredibly sexy. His wavy dark hair was thick and perpetually in need of a trim—as untamable as the man himself.
She was face-to-face with her own private fantasy come true. Gavin Jarret, bad boy of the county, stood close enough that by simply extending her hand, she could slide her fingers over the hard, flat planes of the exposed skin on his chest.
Tempting.
Very tempting.
Which only went to prove how muddled her thinking had become. Gavin was no boy. He was five years older than her and carried himself with a dangerous air of sensuality that had nothing to do with money, clothes or cars. If this had been the era of the Wild West, he’d have a gun strapped on one lean hip and a hat with the brim pulled low over his forehead. He wasn’t cocky. He didn’t need to be. He moved with the easy assurance of a man who had no need to prove anything to anyone, but wouldn’t back down from a challenge.
Gavin had starred in many of Leigh’s wishful dreams since she’d first glimpsed him working at Wickert’s gas station in town. Rumor had it he’d been arrested, thrown out of several schools, and that he kissed like nobody’s business. She could believe the latter. His mouth fascinated her. Everything about Gavin fascinated her.
He’d been one of the many foster youths her neighbors, Emily and George Walken, had taken on. Everyone told them it was a mistake. Gavin was a loner who liked it that way. Whenever there was trouble, the police came knocking on his door first. But like so many others the Walkens had helped, Gavin had settled down under their guidance. Now he used their place as his home base when he wasn’t away at college.
“Heat getting to you?” he asked.
The slow glide of his words ignited a tingling flame low in her belly. His gaze seemed to linger on her cleavage and the daringly bared expanse of midriff over the jeans that just barely covered her navel. She’d regretted the choice almost immediately after leaving her room earlier that night, but had decided to brazen the situation out. She’d felt naked ever since—especially when Nolan had gazed at her with a predator’s hunger.
Funny, but Gavin’s appreciative gaze had just the opposite effect. It stirred something to life inside her, something daring and exciting and strange. Tipping her head to one side, she smiled up at him.
“It’s terribly hot inside.”
He proffered an open bottle of beer. She’d been so focused on the rest of him, she hadn’t even noticed his hands. They were big, solid hands, with long, tapered fingers.
“Want a sip?”
Her heart fluttered madly. His voice was deep and gravelly. Sexy, like the rest of him. “Sure. Thanks.”
Their hands touched.
Hot and wild, a surge of energy flowed through her. Leigh tried not to shiver at that contact. The pads of his fingers were rough and callused from working at the garage, not baby soft like Nolan’s.
Taking the bottle, she put her mouth where his had been. The sensation was deliciously naughty. From somewhere came the courage to look him in the eye as she took a long swallow. The beer trickled down her dry throat, icy cold.
She sensed approval as his gaze slipped away to travel the length of her throat, then lingered on the swell of her breasts. Her nipples tightened along with the rest of her. A prickly restlessness enveloped her.
The moon skittered behind a wispy cloud, plunging his features into deeper shadow. As she handed him back the bottle, she dared a tiny caress over his knuckles.
Gavin studied her with dark, unfathomable eyes. With deliberate slowness, he raised the neck of the bottle and covered its mouth with his lips. Tilting the neck back, he took a long, slow drink.
Leigh couldn’t tear her gaze away. She followed the path of the liquid down his throat, feeling as if that mouth was on her rather than on the bottle in his hand.
His eyes stared deeply into hers. “Want to take a ride?”
He gestured toward a sleek black motorcycle waiting in the shadows beside the pickup truck.
Her body hummed with energy. The prickling sensation centered itself between her legs, charging her with unbearable excitement. Her fantasy was coming to life. Did she have the nerve to see it through?
She strove to mimic her sister’s easy tone, smiling with false confidence. “Sure. Why not?”
“I don’t have an extra helmet,” he cautioned. “That fancy hairdo of yours is going to get messed.”
“Not if I take it down first.”
The brazen words seemed to have a life of their own. So did her hands as they reached for the clip holding the carefully styled mass of hair on top of her head. His sensual hunger was tangible, bonding them together in the night. He watched every motion through heavy-lidded eyes.
Freed, the golden-brown mass spilled over her shoulders and down her back. Her fingers threaded the strands as he watched. She trembled when his hand came up, reaching out to lift a section and rub it between those long callused fingers. His eyes went darker still, with unmistakable desire.
Leigh couldn’t breathe.
“Come on,” he said abruptly.
She had never been on a motorcycle in her life. Amazingly, she slid behind him as though she’d been doing it all her life.
“Hold on to me,” he told her.
The buzzing in her head was almost welcome as she wrapped her arms around his trim waist. The tingly feeling became a burning ache of need. They took off with a deafening roar.
Hair whipped around her face, tossing streamers behind as they raced along the twisty road. Her fingers tightened spasmodically around him, but she quickly found the rhythm of moving with his body and the bike. Wind whistled in her ears as trees rushed past. Her fingers sought a better grip, brushing his zipper. He was aroused.
Part of her registered that fact in shock, but the shock was quickly overwhelmed by a yearning she had never experienced before. Tentatively, her fingers traced that bulge, feeling it swell and pulse.
A tiny core of sanity screamed in alarm. Her body no longer listened. It was as if she was acting under dictates she had no control over. She pressed an openmouthed kiss against the shirt on his back. The bike swerved slightly as he reacted.
Gavin steered them down a side road. More of a path, really. She had no idea where they were. She didn’t care. Touching him had become a drug of liberation.
They tore up the narrow dirt road, raising a plume of dust around them. Leigh closed her eyes. She slid her hands wantonly over his bare skin. Nothing had ever felt this incredible. He was hard planes and supple skin and she was breathing fast and shallow when he pulled the bike into a copse of trees and stopped. He came off the bike in a smooth motion, then whisked her off before she knew what he was doing. She stood on legs of rubber as he crushed her against his body. His mouth sought hers in a kiss that demanded a total response.
And she gave it, kissing him back with a fervor that astonished the tiny portion of her brain still functioning. She felt branded as his tongue plunged into her mouth, mimicking an action her body seemed to crave. He tasted of cigarettes and beer, with a subtle hint of peppermint, of all things.
It took her several seconds to realize tiny, animal sounds of need were issuing from her throat. She couldn’t get enough of the feel and taste of him. She wanted more. Her body seemed to be catapulting her toward some precipice, demanding that she hurry.
She uttered a small cry of protest when he pulled back. His eyes gleamed, dark and hot and wild like the night. His teeth glinted in the dancing moonlight as he smiled.
“Slow down, baby, we’ve got all the time in the world.”
But she couldn’t slow down. She wanted to scream at him to hurry. Yet the only sound she seemed capable of making was a ridiculous, yearning whimper. He yanked a blanket from his saddlebag and spread it in the clearing. Her brain felt muzzy and disoriented, yet the incredible need continued to build inside her, overwhelming conscious thought.
“You’re going to burn me alive, looking at me like that.”
Yes! Exactly! She was burning with a need only he could satisfy. “Hurry. Please.”
He grinned wickedly. “I intend to do both.”
His mouth claimed hers in a hot, wet duel as he drew them down on the thin blanket. Every fiber of her was on fire. Grass pricked at her skin through the thin material, acting as yet another spur to the incredible tension stretching inside her.
Leigh never felt his deft fingers bare her breasts to the night sky. She was lost in a tidal wave of sensations that pushed her ever closer to the waiting precipice. Then his mouth closed over one nipple. She free-fell in shudders of exhilaration.
Dimly, she heard his sound of satisfaction. “Sing for me, baby.”
She should have been mortified to know he watched her lose control. But he gave her no time to recover. Using that incredibly talented mouth, he set about igniting the fire all over again. Her mouth, the sensitive skin of her throat, nibbling on an earlobe until she quivered. With a low sound of satisfaction, he set a new path with his lips, placing light kisses along her throat, her collarbone, her breast, until he could draw the nipple deeply into his mouth. Her body arched in supplication.
A tiny kernel of sanity watched in stunned amazement as she went completely wild, tearing at his clothing, covering his skin with kisses and tiny nips that elicited surprise and a few startled groans of pleasure. Somehow they were both nude. It was shocking, yet intensely exciting. His lips forged a new path down her tummy and lower still. He paused, his breath stirring the hairs at the junction of her legs, making her moan in anticipation. Then he settled there, his mouth doing incredibly naughty things she’d only read about, until now.
He chuckled as her hands strained to touch him, this incredible, fascinating shadowy shape in the dark. He assumed the role of teacher as he showed her untutored body how to please them both. The wild clamoring filled her once more and she wondered if she’d gone mad.
Finally, he stretched out over her. Butter soft, yet uncompromisingly hard. Their sweat-slicked skin came together and he claimed her with one hard thrust. He swallowed her shocked cry with his mouth. The stab of pain was almost immediately lost in the extraordinary sense of fullness.
She thought she heard him swear, but when she began to move against him, he shuddered and began to move as well, withdrawing, almost completely, only to surge against her once more, faster, harder, perfect.
Leigh was beyond words, beyond thought. She clenched around him, demanding more insistently as she pushed her body against his. With a curse and a groan, he began to move, harder, faster, deeper. The pleasure returned, driving her toward some incredible goal until the world exploded in a pleasure beyond description.
“WAKE UP. Damn it, Hayley, wake up.”
Confused, her mind tried to make sense of the masculine voice and the hand shaking her none too gently.
“I’m Leigh,” she muttered, unable to lift her heavy eyelids. The shaking sensation stopped. She felt the hard rocky ground at her back. Vaguely, she wondered if she’d ever stop trembling.
Gavin cursed again. She should say something, but it was far too difficult to battle the fatigue pressing shut her eyes.
Something wet covered her face. She batted uselessly at the cloth, but hands pinned her arms over her head to the blanket. She blinked as the cloth fell away, trying to make out his features in the dark.
“That’s it. Snap out of it. How much did you have to drink?”
The rough demand reached past the haze. “One. Beer.”
He swore viciously. “Are you lying?”
“Never. Lie. So tired.”
“You’re drugged.”








